Dự Án Phúc Đạt Tower Tân Uyên: Điểm Sáng Nhà Ở Xã Hội Tại Bình Dương

Thành phố Tân Uyên, Bình Dương đang nổi lên như một trung tâm công nghiệp và đô thị mới, thu hút lượng lớn người lao động và cư dân. Trong bối cảnh đó, nhu cầu về nhà ở, đặc biệt là nhà ở xã hội, ngày càng cấp thiết. Dự án Phúc Đạt Tower Tân Uyên xuất hiện như một giải pháp nhà ở chất lượng, mang đến cơ hội an cư cho nhiều gia đình. Với sự đầu tư nghiêm túc từ Công ty TNHH Sản xuất và Thương mại Phúc Đạt, dự án hứa hẹn sẽ là nơi an cư lý tưởng với đầy đủ tiện ích hiện đại.
Phúc Đạt Tower Tân Uyên không chỉ là một dự án nhà ở xã hội thông thường mà còn được quy hoạch đồng bộ trong Khu dân cư Phúc Đạt, đảm bảo môi trường sống văn minh và tiện nghi. Dự án có tổng diện tích đất là 11.440,8m2 (tương đương 1,14 ha) và tổng mức đầu tư ấn tượng khoảng 1.300 tỷ đồng, thể hiện cam kết của chủ đầu tư trong việc xây dựng một cộng đồng cư dân bền vững.
Tổng Quan Dự Án Phúc Đạt Tower Tân Uyên
Phúc Đạt Tower Tân Uyên là dự án nhà ở xã hội cao tầng, được xây dựng tại vị trí đắc địa, hứa hẹn mang lại cuộc sống tiện nghi cho cư dân. Chủ đầu tư dự án là Công ty TNHH Sản xuất và Thương mại Phúc Đạt, một đơn vị uy tín trong lĩnh vực bất động sản. Dự án bao gồm các sản phẩm chính là căn hộ nhà ở xã hội (NOXH) và các căn shophouse thương mại.
Quy Mô và Sản Phẩm

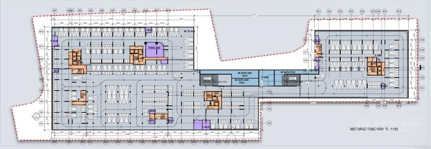
Quy mô của Phúc Đạt Tower Tân Uyên được thiết kế hiện đại và tối ưu hóa không gian sống. Dự án bao gồm 03 khối chung cư cao 18 tầng cùng 1 tum, được kết nối bởi 1 khối nối 2 tầng (khối A và B), và có 1 tầng hầm chung rộng rãi.
Các chỉ số cơ bản của dự án:
- Tên dự án: Phúc Đạt Tower Tân Uyên
- Chủ đầu tư: Công ty TNHH Sản xuất và Thương mại Phúc Đạt
- Địa điểm: Phường Tân Hiệp, Thành phố Tân Uyên, Bình Dương.
- Tổng diện tích đất: 11.440,8m2 (1,14 ha)
- Diện tích xây dựng: 4.291,08m2
- Mật độ xây dựng: 37,51%
- Tổng diện tích sàn xây dựng: 68.701,54m2
Về sản phẩm, dự án cung cấp:
- Số lượng căn hộ NOXH (để bán): 936 căn
- Số lượng shophouse thương mại: 39 căn
- Diện tích căn hộ: Đa dạng, từ 32m2 đến 62m2, phù hợp với nhu cầu của các gia đình trẻ và người lao động.

Vị Trí Chiến Lược
Dự án Phúc Đạt Tower Tân Uyên tọa lạc tại Khu dân cư Phúc Đạt, thuộc Phường Tân Hiệp, Thành phố Tân Uyên, tỉnh Bình Dương. Mặc dù thông tin mô tả có nhắc đến Thành phố Hồ Chí Minh (TP Tân Uyên, Bình Dương cũ), vị trí hiện tại đã được xác định rõ ràng là thuộc Thành phố Tân Uyên, Bình Dương. Vị trí này mang lại nhiều lợi thế về kết nối giao thông và tiện ích khu vực.
Kết Nối Vùng và Tiềm Năng Phát Triển
Vị trí của Phúc Đạt Tower Tân Uyên nằm trong khu vực đang có tốc độ phát triển đô thị hóa cao của Tân Uyên. Thành phố Tân Uyên là nơi tập trung nhiều khu công nghiệp lớn, là động lực tăng trưởng kinh tế của Bình Dương. Việc an cư tại đây giúp cư dân dễ dàng tiếp cận các khu vực làm việc và các tiện ích ngoại khu hiện hữu. Tọa độ của dự án được ghi nhận là Vĩ độ 11,08581066 và Kinh độ 106,7656937.

Thiết Kế Hiện Đại và Tối Ưu
Thiết kế của Phúc Đạt Tower Tân Uyên được chú trọng nhằm tối đa hóa không gian sử dụng và đảm bảo tính thẩm mỹ, hiện đại cho một khu chung cư cao tầng. Cả 03 khối nhà đều cao 18 tầng, với sự hiện diện của khối nối 2 tầng và tầng hầm chung, tạo nên sự liên kết vững chắc và thuận tiện cho cư dân.
Cấu Trúc Tòa Nhà và Căn Hộ
Với tổng số 936 căn hộ NOXH và 39 căn shophouse, dự án được thiết kế để đáp ứng nhu cầu đa dạng của thị trường. Diện tích căn hộ từ 32m2 đến 62m2 cho phép khách hàng lựa chọn loại hình phù hợp với khả năng tài chính và nhu cầu sinh hoạt của gia đình mình. Mặc dù là nhà ở xã hội, chủ đầu tư vẫn cam kết mang đến những căn hộ được thiết kế khoa học, tận dụng ánh sáng tự nhiên và thông gió tốt.

Hệ Thống Tiện Ích Đẳng Cấp Nội Khu
Phúc Đạt Tower Tân Uyên được trang bị hệ thống tiện ích nội khu đa dạng, đảm bảo một cuộc sống đầy đủ, tiện nghi và giải trí cho mọi lứa tuổi cư dân. Các tiện ích được bố trí hợp lý, đặc biệt là khu vực tầng 3.
Tiện Ích Nổi Bật

Danh sách các tiện ích cụ thể bao gồm:
- Hồ bơi tràn bờ và sân vườn (tầng 3): Đây là điểm nhấn quan trọng, mang lại không gian thư giãn, vui chơi, và tập luyện sức khỏe tuyệt vời cho cư dân.
- Nhà trẻ: Cung cấp môi trường chăm sóc và giáo dục chất lượng cho con em cư dân ngay tại nội khu, giúp các bậc phụ huynh yên tâm làm việc.
- Khu sinh hoạt cộng đồng: Nơi tổ chức các hoạt động chung, giao lưu và gắn kết cộng đồng cư dân.
- Phòng gym: Được trang bị đầy đủ máy móc hiện đại phục vụ nhu cầu rèn luyện sức khỏe.
- Bãi đỗ xe: Đảm bảo không gian đỗ xe rộng rãi và an toàn cho cư dân.
- Hệ thống PCCC: Được đầu tư đồng bộ, đạt chuẩn an toàn phòng cháy chữa cháy, đảm bảo sự an toàn tối đa.
Các Loại Hình Tiện Ích Khác
Ngoài các tiện ích chính đã nêu, cư dân Phúc Đạt Tower Tân Uyên còn được hưởng lợi từ nhiều loại hình tiện ích khác, tạo nên một cuộc sống trọn vẹn:

- Tiện ích thư giãn và thể thao: Công viên, Đường chạy bộ, Phòng Yoga, Hồ bơi vô cực.
- Tiện ích cộng đồng và dịch vụ: Phòng sinh hoạt, Vui chơi trẻ em, Siêu thị, Cửa hàng tiện lợi, Spa, Coffee, Thang máy.
- Tiện ích an ninh và hạ tầng: Hệ thống An ninh, Hệ thống Điều hòa, Lối thoát hiểm, Hệ thống PCCC.
Tiến Độ Triển Khai
Thông tin về tiến độ dự án cho thấy Phúc Đạt Tower Tân Uyên đang được triển khai theo kế hoạch. Một cột mốc quan trọng đã được công bố là Lễ khai trương nhà mẫu dự án sẽ diễn ra vào ngày 14/09/2025. Đây là dấu hiệu tích cực, cho thấy dự án đang tiến gần đến giai đoạn bàn giao và sẵn sàng chào đón cư dân.

Thông Tin Thêm Về Thiết Kế Cấu Trúc
Về mặt bằng và thiết kế kiến trúc, dự án được quy hoạch bài bản. Cấu trúc gồm 03 khối chung cư 18 tầng cộng 1 tum, cùng với tầng hầm chung rộng lớn, giúp giải quyết triệt để vấn đề đỗ xe cho cư dân. Mật độ xây dựng 37,51% được đánh giá là hợp lý đối với một dự án nhà ở xã hội, đảm bảo không gian mở và cây xanh cho khu vực sinh hoạt chung.

Các căn hộ NOXH tại Phúc Đạt Tower Tân Uyên với diện tích linh hoạt từ 32m2 đến 62m2 được thiết kế để tối ưu hóa công năng. Cấu trúc căn hộ được nghiên cứu kỹ lưỡng để phù hợp với nhu cầu sinh hoạt của các gia đình, đồng thời đảm bảo yếu tố ánh sáng và thông gió tự nhiên, mang lại cảm giác thoải mái, dễ chịu cho người ở.




Phúc Đạt Tower Tân Uyên: Cơ Hội An Cư Vững Chắc
Với tổng số 936 căn hộ nhà ở xã hội, Phúc Đạt Tower Tân Uyên đang giải quyết một phần đáng kể nhu cầu nhà ở cho người lao động có thu nhập trung bình và thấp tại Bình Dương. Đây là một dự án mang ý nghĩa xã hội lớn, được Chủ đầu tư Công ty TNHH Sản xuất và Thương mại Phúc Đạt triển khai với tiêu chuẩn chất lượng cao.
Việc dự án có thêm 39 căn shophouse cũng mở ra cơ hội kinh doanh và tăng thêm tiện ích dịch vụ cho cộng đồng cư dân nội khu và khu vực lân cận. Mô hình kết hợp căn hộ và shophouse luôn được đánh giá cao vì tính tiện lợi và khả năng tự cung cấp dịch vụ trong phạm vi dự án.


Tân Uyên đang trên đà phát triển mạnh mẽ về cơ sở hạ tầng. Việc sở hữu một căn hộ tại Phúc Đạt Tower không chỉ là nơi an cư mà còn là một quyết định đầu tư thông minh vào một khu vực có tiềm năng tăng trưởng cao. Sự kiện khai trương nhà mẫu vào tháng 9/2025 sẽ là cơ hội để khách hàng trực tiếp trải nghiệm chất lượng thiết kế và không gian sống mà dự án mang lại.
Tóm lại, Phúc Đạt Tower Tân Uyên là một dự án bất động sản xã hội nổi bật, đáp ứng đầy đủ các tiêu chí về vị trí thuận lợi, thiết kế hiện đại, và tiện ích đa dạng. Với sự minh bạch trong thông tin và cam kết từ chủ đầu tư, dự án xứng đáng là lựa chọn hàng đầu cho những ai đang tìm kiếm một tổ ấm ổn định tại Thành phố Tân Uyên, Bình Dương.
