Phú Quốc River Garden: Cơ hội an cư và đầu tư tuyệt vời tại Đảo Ngọc Kiên Giang
Dự án Phú Quốc River Garden, tọa lạc tại vị trí chiến lược trên Đảo Ngọc Phú Quốc, đang nổi lên như một khu dân cư kiểu mẫu, hứa hẹn mang đến cuộc sống hài hòa giữa thiên nhiên và tiện nghi hiện đại. Được đầu tư và phát triển bởi Công ty CP ĐT Khương Thịnh, dự án này không chỉ là nơi an cư lý tưởng mà còn là cơ hội đầu tư hấp dẫn với mức giá cạnh tranh. Với quy mô và thiết kế ấn tượng, Phú Quốc River Garden xứng đáng là tâm điểm mới của thị trường bất động sản Phú Quốc.

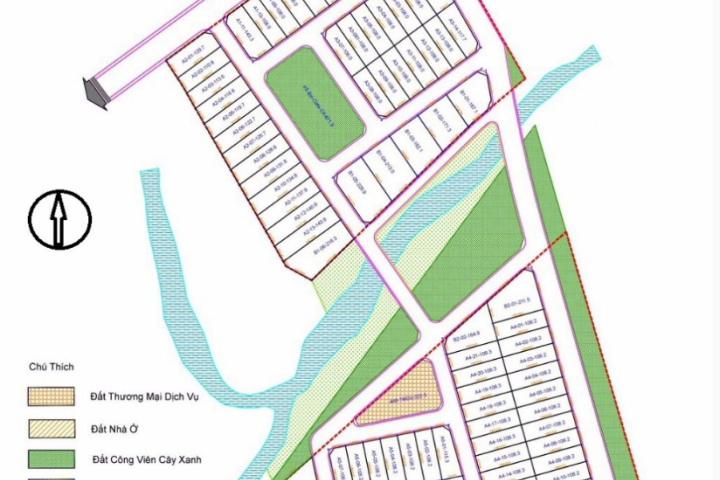
Tổng quan thông tin dự án Phú Quốc River Garden
Phú Quốc River Garden là dự án khu dân cư được quy hoạch bài bản trên tổng diện tích 2 ha (20.000 m2). Chủ đầu tư là Công ty CP ĐT Khương Thịnh đã kiến tạo nên một không gian sống đẳng cấp với sự kết hợp hài hòa giữa các loại hình bất động sản và mảng xanh rộng lớn. Dự án bao gồm các loại hình chính:
- Quy mô: 74 nền nhà phố, 10 nền biệt thự và 1 dãy Condotel.
- Diện tích tổng thể: 2 ha (tương đương 20.000 m2).
- Diện tích cây xanh: Lớn hơn 1000 m2, đảm bảo không gian sống trong lành.
- Pháp lý: Sổ hồng riêng, mang lại sự an tâm tuyệt đối cho khách hàng và nhà đầu tư.
- Mức giá tham khảo: Chỉ từ 7 triệu đồng/m2, là một mức giá hấp dẫn cho bất động sản tại Phú Quốc.
Sự kết hợp giữa nhà phố, biệt thự và Condotel tạo nên sự đa dạng trong lựa chọn an cư và đầu tư. Các nền nhà phố được thiết kế 1 trệt 1 lầu, với diện tích tiêu chuẩn 6x18 m2, phù hợp với nhu cầu sinh hoạt của gia đình hiện đại. Đối với những khách hàng tìm kiếm không gian sống rộng rãi và sang trọng hơn, các căn biệt thự có diện tích từ 167 đến 230 m2/căn là lựa chọn hoàn hảo.

Vị trí đắc địa và tiềm năng kết nối
Vị trí là một trong những yếu tố then chốt tạo nên giá trị của Phú Quốc River Garden. Dự án tọa lạc ngay mặt tiền đường Nguyễn Trung Trực và đường Tuyến Tránh, thuộc Thị trấn Dương Đông, Phú Quốc, Kiên Giang. Đây được xem là cửa ngõ chiến lược, mang lại tiềm năng lớn về kinh tế, dịch vụ, thương mại và giáo dục ở phía Nam huyện đảo Phú Quốc.
Mô tả chi tiết vị trí
Khu đất của dự án có lợi thế đặc biệt khi được bao quanh bởi dòng suối trong xanh và các khu dân cư hiện hữu, tạo nên một môi trường sống yên bình nhưng không kém phần sầm uất. Địa chỉ chính xác là Đường Nguyễn Trung Trực, Thị trấn Dương Đông, Phú Quốc, Kiên Giang. Dự án nằm ở tọa độ Vĩ độ 10,24407005 và Kinh độ 103,9874725.

Kết nối giao thông và tiện ích ngoại khu
Từ Phú Quốc River Garden, cư dân dễ dàng di chuyển và tiếp cận hàng loạt tiện ích ngoại khu quan trọng:
- Chỉ mất 5 phút di chuyển đến Trung Tâm Hành Chính Dương Đông và các trường học các cấp, thuận tiện cho công việc và giáo dục.
- Khoảng 10 phút để đến Chợ Dương Đông, Bệnh viện đa khoa và Bưu điện Dương Đông, đáp ứng nhu cầu sinh hoạt hàng ngày.
- Chỉ 15 phút để đến Sân Bay Phú Quốc, rất thuận lợi cho việc di chuyển liên tỉnh và quốc tế.
Hệ thống giao thông đồng bộ và hoàn thiện tại khu vực giúp việc kết nối với các trục đường lớn trở nên dễ dàng, tối ưu hóa lợi thế kinh tế và thương mại cho dự án. Vị trí này cách khu vực Dương Đông sầm uất chỉ 5 phút chạy xe, đảm bảo cư dân vừa được tận hưởng sự yên tĩnh của khu dân cư ven suối, vừa dễ dàng tiếp cận trung tâm.

Tiện ích nội khu đẳng cấp
Để xứng tầm là khu dân cư kiểu mẫu, Phú Quốc River Garden được trang bị chuỗi tiện ích nội khu hiện đại, phục vụ tối đa nhu cầu sống, thư giãn và giải trí của cư dân:
Hệ thống hồ bơi và công viên xanh
Dự án nổi bật với khu hồ bơi có tổng diện tích lớn hơn 800 m2, bao gồm một hồ bơi lớn và một hồ bơi nhỏ, là nơi lý tưởng để cư dân thư giãn và rèn luyện sức khỏe. Bên cạnh đó, diện tích cây xanh rộng lớn (>1000m2) được quy hoạch thành công viên xanh, cỏ cây và dòng suối xen kẽ, mang lại không gian sống trong lành, mát mẻ và gần gũi với thiên nhiên.

Dịch vụ và hạ tầng hoàn chỉnh
Phú Quốc River Garden chú trọng phát triển hạ tầng nội khu hiện đại:
- Khu dịch vụ thương mại: Nằm ngay trong khuôn viên dự án, cung cấp các dịch vụ tiện ích thiết yếu.
- Khu vui chơi trẻ em: Đảm bảo không gian an toàn và bổ ích cho các cư dân nhí.
- Hạ tầng kỹ thuật: Điện âm, nước máy được cung cấp đầy đủ, đảm bảo chất lượng sống cao.
- Hệ thống đường nội khu: Rộng rãi với các lộ giới 6m, 8m, và 30m, tạo điều kiện thuận lợi cho giao thông và cảnh quan.
Thiết kế tinh tế của dự án tạo ra không gian hài hòa, nơi khu biệt thự và nhà phố xen kẽ với mảng xanh công viên, cỏ cây và sông nước, mang lại cuộc sống tuyệt vời cho các chủ nhân tương lai. Đây là một điểm mạnh lớn, thể hiện cam kết của chủ đầu tư trong việc xây dựng một cộng đồng cư dân văn minh và chất lượng.

Chủ đầu tư uy tín và tiềm năng pháp lý
Dự án Phú Quốc River Garden được phát triển bởi Công ty CP ĐT Khương Thịnh, một đơn vị đã tạo được uy tín trên thị trường bất động sản. Sự minh bạch về pháp lý là một ưu điểm lớn, với tất cả các sản phẩm đều có Sổ hồng riêng. Điều này không chỉ bảo vệ quyền lợi của người mua mà còn khẳng định tính thanh khoản và giá trị bền vững của dự án. Với pháp lý vững chắc, Phú Quốc River Garden là lựa chọn an toàn cho cả mục đích an cư lâu dài và đầu tư sinh lời.
Cơ hội đầu tư không thể bỏ qua
Phú Quốc, được mệnh danh là Đảo Ngọc, luôn là điểm nóng thu hút đầu tư du lịch và bất động sản nghỉ dưỡng. Việc sở hữu một bất động sản tại vị trí đắc địa như Phú Quốc River Garden, với mức giá chỉ 7 triệu đồng/m2, là cơ hội hiếm có để các nhà đầu tư gia tăng tài sản.

Giá trị gia tăng bền vững
Vị trí chiến lược nằm ngay mặt tiền các tuyến đường huyết mạch, cùng với sự phát triển đồng bộ của hạ tầng khu vực Dương Đông, đảm bảo tiềm năng tăng giá trong tương lai. Sự hiện diện của 74 nền nhà phố, 10 nền biệt thự, và 1 dãy Condotel tạo ra sự đa dạng về sản phẩm, đáp ứng nhiều phân khúc khách hàng. Đặc biệt, khu vực này liền kề khu thương mại, siêu thị, nhà phố, và trường học, tạo ra một hệ sinh thái tiện ích hoàn chỉnh, đẩy mạnh giá trị sử dụng và đầu tư.
Phú Quốc River Garden không chỉ bán một bất động sản, mà còn bán một phong cách sống. Với thiết kế hài hòa, không gian xanh mát và tiện ích nội khu phong phú, dự án mang đến một cuộc sống chất lượng cao cho cư dân, đồng thời mở ra cánh cửa đầu tư sinh lời bền vững tại một trong những hòn đảo du lịch phát triển nhất Việt Nam. Cơ hội an cư - đầu tư tại Phú Quốc River Garden đang đến rất gần với tầm tay của bạn.