Tổng quan
Trạng thái:  Đang xây dựng
Mô tả

Dự Án Nhà Ở Xã Hội Happy Home Công Đoàn: Cơ Hội An Cư Lạc Nghiệp Tại Hà Nam

Dự án Happy Home Công Đoàn, tọa lạc tại phường Đồng Văn, thị xã Duy Tiên, tỉnh Hà Nam, đang là điểm nóng thu hút sự chú ý của thị trường bất động sản khu vực phía Bắc. Đây là dự án nhà ở xã hội quy mô lớn, do Liên danh Công ty Cổ phần Arita – PV Land – Trung Đức làm chủ đầu tư, nhằm cung cấp giải pháp an cư ổn định, chất lượng cho người lao động và cư dân tại địa phương. Với vị trí chiến lược và hệ thống tiện ích đồng bộ, Happy Home Công Đoàn không chỉ là nơi ở mà còn là môi trường sống lý tưởng, thúc đẩy sự phát triển kinh tế - xã hội của khu vực Duy Tiên.

Tổng quan dự án Happy Home Công Đoàn

Tổng Quan Dự Án Happy Home Công Đoàn

Happy Home Công Đoàn được triển khai trên tổng diện tích 41.924,3m², mang đến sự kết hợp hài hòa giữa không gian sống xanh và cơ sở hạ tầng hiện đại. Dự án bao gồm các loại hình sản phẩm đa dạng, đáp ứng nhu cầu ở thực của nhiều đối tượng khách hàng, đặc biệt là công nhân và cán bộ công đoàn.

Quy mô dự án bao gồm:

  • 29 căn Liền kề Shophouse: Phục vụ mục đích ở kết hợp kinh doanh, tạo nên khu phố thương mại sầm uất.
  • 4 Tòa căn hộ chung cư cao 14 tầng (CT1 đến CT4): Cung cấp tổng cộng 928 căn hộ để bán, với diện tích linh hoạt từ 35 m² đến 70 m².
  • Ngoài ra, dự án còn có 5 tòa nhà ở 5 tầng với 244 căn dành cho thuê.

Diện tích đất xây dựng của dự án là 12.993 m², cho thấy sự chú trọng vào không gian tiện ích và giao thông nội khu, đảm bảo mật độ xây dựng hợp lý. Dự án được triển khai với mục tiêu mang lại nơi an cư chất lượng cao, bền vững, góp phần nâng cao chất lượng sống cho người dân Hà Nam.

Dự án đang trong quá trình hoàn thiện tích cực. Hiện tại, Nhà ở xã hội Đồng Văn Happy Home đã xây dựng cất nóc Tòa 1.2 và đang tiến hành hoàn thiện nhà mẫu tại tầng 02 của Tòa 1.2 để chào đón khách hàng tham quan. Dự kiến bàn giao vào Quý 4/2025.

Vị Trí Kim Cương và Khả Năng Kết Nối

Vị trí là một trong những ưu điểm nổi bật nhất của Happy Home Công Đoàn. Dự án nằm ngay tại phường Đồng Văn, thị xã Duy Tiên, tỉnh Hà Nam, và là một phần của Khu nhà ở xã hội Thiết chế công đoàn, thuộc Khu đô thị TNR Đồng Văn.

Ảnh vị trí chiến lược của Happy Home Công Đoàn

Vị trí này được đánh giá cao nhờ khả năng kết nối giao thông vượt trội, dễ dàng tiếp cận các tuyến đường huyết mạch như Quốc lộ 1, Quốc lộ 3B và cao tốc Cầu Giẽ, tạo điều kiện thuận lợi cho việc di chuyển đến các tỉnh thành lân cận và thủ đô Hà Nội. Sự gần gũi với các khu công nghiệp lớn cũng làm tăng giá trị thực của dự án đối với cộng đồng người lao động.

Mô tả chi tiết ranh giới vị trí:

Vị trí Happy Home được bao quanh bởi các tiện ích và khu vực phát triển quan trọng:

  • Phía Đông: Giáp Dự án TNR Đồng Văn và Nhà thi đấu Đồng Văn.
  • Phía Tây: Giáp Ủy ban phường Đồng Văn.
  • Phía Nam: Giáp Dự án TNR Đồng Văn và Khu công nghiệp Đồng Văn 3.
  • Phía Bắc: Giáp Quốc lộ 38 và Khu công nghiệp Đồng Văn 1 & 2.
Sơ đồ vị trí Happy Home Công Đoàn Hà Nam

Ngoài ra, đối diện dự án là siêu thị Lan Chi Mark, phía trước là Khu công nghiệp Đồng Văn, bên trái là UBND thị trấn Đồng Văn và bên phải là Sân vận động Thị trấn Đồng Văn. Phía sau là khu công nghiệp do chủ đầu tư người Nhật triển khai. Sự hiện diện của các tiện ích công cộng, thương mại, và khu công nghiệp lớn xung quanh khẳng định tiềm năng phát triển và tính thanh khoản cao của dự án.

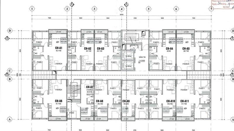
Thiết Kế và Quy Mô Sản Phẩm Chi Tiết

Dự án Happy Home Công Đoàn được thiết kế hiện đại, tối ưu hóa không gian sống và công năng sử dụng. Tổng thể quy mô 41.924,3m² được phân bổ khoa học, đảm bảo không gian xanh và hạ tầng kỹ thuật tiêu chuẩn.

Phân bổ diện tích đất:

  • Diện tích đất xây dựng: 12.993,7m²
  • Diện tích đỗ xe ngoài trời: 3.925,98m²
  • Diện tích đỗ xe trong nhà: 3.500m²
  • Diện tích đất giao thông: 5.626,5m²

Căn hộ Chung cư Nhà ở xã hội (NOXH):

Khối căn hộ cao tầng bao gồm 4 tòa (CT1 đến CT4), cao 14 tầng, tổng cộng 958 căn hộ (trong đó có 928 căn để bán). Đây là loại hình sản phẩm chủ lực, phục vụ nhu cầu nhà ở cho đại bộ phận người lao động.

  • Số tòa: 4 tòa
  • Số tầng cao: 14 tầng
  • Diện tích căn hộ đa dạng: Từ 35,6m² đến 68m² (chủ yếu là 35m² đến 70m²), thiết kế tối ưu công năng, phù hợp với tài chính của người mua NOXH.
Thiết kế mặt bằng tổng thể dự án

Liền kề Shophouse Happy Home Công Đoàn:

Khu liền kề shophouse được bố trí ở những vị trí đắc địa, vừa là nơi an cư, vừa là cơ hội kinh doanh sinh lời bền vững.

  • Số lô: 29 căn
  • Diện tích đất: 90m² - 124m²
  • Chiều cao: 3 tầng
  • Mật độ xây dựng: 75% - 80% trên tổng diện tích đất
  • Tổng chiều cao xây dựng: 10,8m
  • Công năng: Đất ở kết hợp thương mại.

Với sự đa dạng về loại hình và diện tích, Happy Home Công Đoàn mang lại nhiều sự lựa chọn cho khách hàng, từ căn hộ nhỏ gọn đến nhà liền kề thương mại. Điều này khẳng định cam kết của chủ đầu tư trong việc xây dựng một khu đô thị hoàn chỉnh và đồng bộ.

Mặt cắt căn hộ mẫu Happy Home Công Đoàn

Hệ Thống Tiện Ích Nội Khu và Ngoại Khu Đẳng Cấp

Happy Home Công Đoàn không chỉ cung cấp các căn hộ chất lượng mà còn phát triển một hệ sinh thái tiện ích nội khu phong phú, đảm bảo cư dân có một cuộc sống tiện nghi, thoải mái ngay tại ngưỡng cửa. Các tiện ích được thiết kế để phục vụ mọi lứa tuổi và nhu cầu sinh hoạt hàng ngày.

Tiện ích khu vui chơi trẻ em nội khu

Tiện ích Nội khu Happy Home:

  • Khu thể thao, Sân chơi: Bao gồm sân chơi ngoài trời và khu vực rèn luyện sức khỏe.
  • Phòng tập Gym: Trang bị hiện đại, phục vụ nhu cầu tập luyện của cư dân.
  • Công viên cây xanh, Vườn tiểu cảnh: Tạo không gian xanh mát, thư giãn.
  • Khu vui chơi trẻ em: Thiết kế an toàn, kích thích sự phát triển của trẻ nhỏ.
  • Trung tâm mua sắm, Siêu thị, Cửa hàng tiện ích 24/7: Đáp ứng nhu cầu mua sắm thiết yếu.
  • Bãi đỗ xe: Gồm bãi đỗ xe ngoài trời (3.925,98m²) và trong nhà (3.500m²).
  • Phố đi bộ, Khu thư giãn: Nơi cư dân giao lưu và nghỉ ngơi.
  • Các loại tiện ích khác: Trường mẫu giáo, ATM & Ngân hàng, Nhà hàng, Thang máy, Hệ thống An ninh, Hệ thống Điều hòa, Lối thoát hiểm, Hệ thống PCCC, Hồ bơi, Phòng sinh hoạt cộng đồng, Lễ tân, Coffee.
Phối cảnh tiện ích hồ bơi và khu thể thao

Tiện ích Ngoại khu:

Nhờ vị trí đắc địa, cư dân Happy Home được hưởng lợi từ chuỗi tiện ích ngoại khu hiện hữu trong bán kính gần, tạo điều kiện thuận lợi tối đa cho cuộc sống:

  • Cách chợ trung tâm chỉ 200m.
  • Cách trụ sở công an 300m.
  • Cách bệnh viện 300m.
  • Cách trường học 200m.
  • Cách siêu thị (Lan Chi Mark) 300m.
  • Cách KCN Đồng Văn chỉ 500m.

Sự kết hợp giữa tiện ích nội khu đầy đủ và tiện ích ngoại khu hoàn thiện giúp Happy Home Công Đoàn trở thành một nơi lý tưởng để sinh sống, làm việc và nuôi dưỡng gia đình.

Hình ảnh phối cảnh dự án từ trên cao

Tiến Độ Xây Dựng và Kế Hoạch Bàn Giao

Dự án Happy Home Công Đoàn đang được triển khai theo đúng tiến độ cam kết, khẳng định uy tín của Liên danh chủ đầu tư. Thông tin về tiến độ cụ thể như sau:

Hiện tại, dự án Nhà ở xã hội Đồng Văn Happy Home đã hoàn thành việc xây dựng cất nóc Tòa 1.2. Công tác hoàn thiện đang được gấp rút thực hiện, bao gồm việc hoàn thiện nhà mẫu tại tầng 02 của Tòa 1.2 để khách hàng có thể tham quan thực tế, đánh giá chất lượng và thiết kế căn hộ.

Dự kiến bàn giao toàn bộ dự án vào Quý 4/2025. Đây là một mốc thời gian quan trọng, mang lại sự yên tâm cho những người lao động và cư dân đã đăng ký mua căn hộ tại đây. Sự minh bạch về tiến độ xây dựng là yếu tố then chốt giúp dự án Happy Home Công Đoàn tạo được niềm tin vững chắc trên thị trường.

Tiến độ xây dựng thực tế của tòa nhà

Cơ Hội Đầu Tư và An Cư

Với vai trò là dự án nhà ở xã hội thiết chế công đoàn, Happy Home Công Đoàn mang lại cơ hội lớn cho những người có thu nhập thấp và trung bình sở hữu nhà ở tại một khu vực có tiềm năng phát triển kinh tế mạnh mẽ như thị xã Duy Tiên.

Giá bán dự án Happy Home Công Đoàn hiện đang được cập nhật, tuy nhiên, với bản chất là nhà ở xã hội, mức giá dự kiến sẽ vô cùng hợp lý, đi kèm với các chính sách hỗ trợ vay vốn ưu đãi, giúp giảm bớt gánh nặng tài chính cho người mua.

Đối với loại hình liền kề shophouse, với diện tích lớn (90m² - 124m²) và vị trí gần các khu công nghiệp, đây là tài sản có giá trị thương mại cao. Việc đầu tư vào shophouse tại Happy Home không chỉ đảm bảo một nơi an cư tiện nghi mà còn mang lại nguồn thu nhập ổn định từ việc cho thuê hoặc kinh doanh dịch vụ.

Phối cảnh Liền kề Shophouse

Kết Luận

Dự án Happy Home Công Đoàn tại Hà Nam là một dự án đáng chú ý, đáp ứng đúng nhu cầu nhà ở cấp thiết của người dân và người lao động trong khu vực. Với quy mô 4,19 ha, vị trí kết nối thuận tiện với các KCN và tuyến giao thông lớn, cùng hệ thống tiện ích nội ngoại khu hoàn chỉnh, Happy Home hứa hẹn mang đến một cuộc sống chất lượng, ổn định và đầy đủ tiện nghi cho cộng đồng cư dân. Đây không chỉ là một dự án nhà ở xã hội mà còn là biểu tượng cho sự phát triển đô thị bền vững tại Duy Tiên, Hà Nam.

Hình ảnh tiện ích nội khu công viên
Phối cảnh tổng thể khu nhà ở xã hội


Vị trí

Thị trấn Đồng Văn, Huyện Duy Tiên, Hà Nam.


Video dự án

Chia sẻ dự án này:



Viết đánh giá

Vui lòng đăng nhập để viết đánh giá!




Liên hệ

Máy tính thế chấp

$

Kéo thanh trượt hoặc nhập số tiền bạn muốn vay

80% 100%
$
%/năm
$

Tính Thế Chấp Của Bạn

Nhập giá bất động sản và thông tin khoản vay ở trên để xem khoản thanh toán hàng tháng ước tính và tổng lãi suất.

Bảng khấu hao

Số tiền vay 0 $
Tổng lãi 0 $
Tổng số tiền 0 $