Tổng quan
Trạng thái:  Đang xây dựng
Mô tả

Đánh giá chi tiết dự án Eco Retreat Long An (Ecopark Bến Lức)

Dự án Eco Retreat Long An, còn được biết đến với tên gọi Ecopark Bến Lức, là một khu đô thị sinh thái, thương mại du lịch quy mô lớn, được phát triển tại xã Thanh Phú, huyện Bến Lức, tỉnh Long An. Đây được coi là một trong những dự án trọng điểm, mang đến không gian sống xanh, tiện nghi và đẳng cấp ngay cửa ngõ phía Tây TP. Hồ Chí Minh.

Hình ảnh tổng quan dự án Eco Retreat Long An

Thông tin tổng quan về Dự án Eco Retreat Long An

Dự án Eco Retreat Long An là sản phẩm hợp tác giữa Liên danh Công ty TNHH MTV Đầu tư và Phát triển DB và Công ty CP Tập đoàn Ecopark – một trong những nhà phát triển bất động sản hàng đầu Việt Nam nổi tiếng với các khu đô thị sinh thái. Với quy mô ấn tượng, dự án hứa hẹn sẽ kiến tạo một cộng đồng cư dân hiện đại, hài hòa với thiên nhiên.

Phối cảnh tổng thể Eco Retreat Long An

Chủ đầu tư uy tín

Chủ đầu tư chính của dự án là Công ty Cổ phần Tập đoàn Ecopark. Ecopark nổi tiếng với triết lý phát triển bền vững, ưu tiên không gian xanh và tiện ích chăm sóc sức khỏe, mang đến những giá trị sống vượt trội cho cư dân.

Quy mô và loại hình phát triển

Eco Retreat Long An có tổng diện tích rộng khoảng 219,5 ha. Dự án được quy hoạch đa dạng loại hình nhà ở, bao gồm:

  • 3.927 lô đất nhà ở thấp tầng (liền kề, biệt thự, tái định cư).
  • Khu cao tầng với quy hoạch xây dựng tối đa 41 tầng, dự kiến cung cấp khoảng 3.500 căn hộ.

Vị trí chiến lược của Eco Retreat Long An

Dự án Eco Retreat Long An sở hữu vị trí đắc địa tại cửa ngõ phía Tây TP. Hồ Chí Minh, thuộc xã Thanh Phú, huyện Bến Lức, tỉnh Long An. Vị trí này không chỉ thuận tiện kết nối giao thông mà còn được bao bọc bởi cảnh quan tự nhiên, đặc biệt là sông Bến Lức, mang lại không gian sống trong lành, mát mẻ.

Bản đồ vị trí dự án Ecopark Bến Lức

Các mặt tiếp giáp của dự án:

  • Phía Đông: Giáp khu dân cư hiện trạng và UBND xã Thanh Phú.
  • Phía Tây: Giáp khu dân cư hiện trạng và sông Bến Lức.
  • Phía Bắc: Giáp khu dân cư hiện trạng và sông Bến Lức.
  • Phía Nam: Giáp tuyến đường giao thông và khu quy hoạch chức năng Logistics.

Tọa độ vị trí: Vĩ độ 10,6653471, Kinh độ 106,4928894.

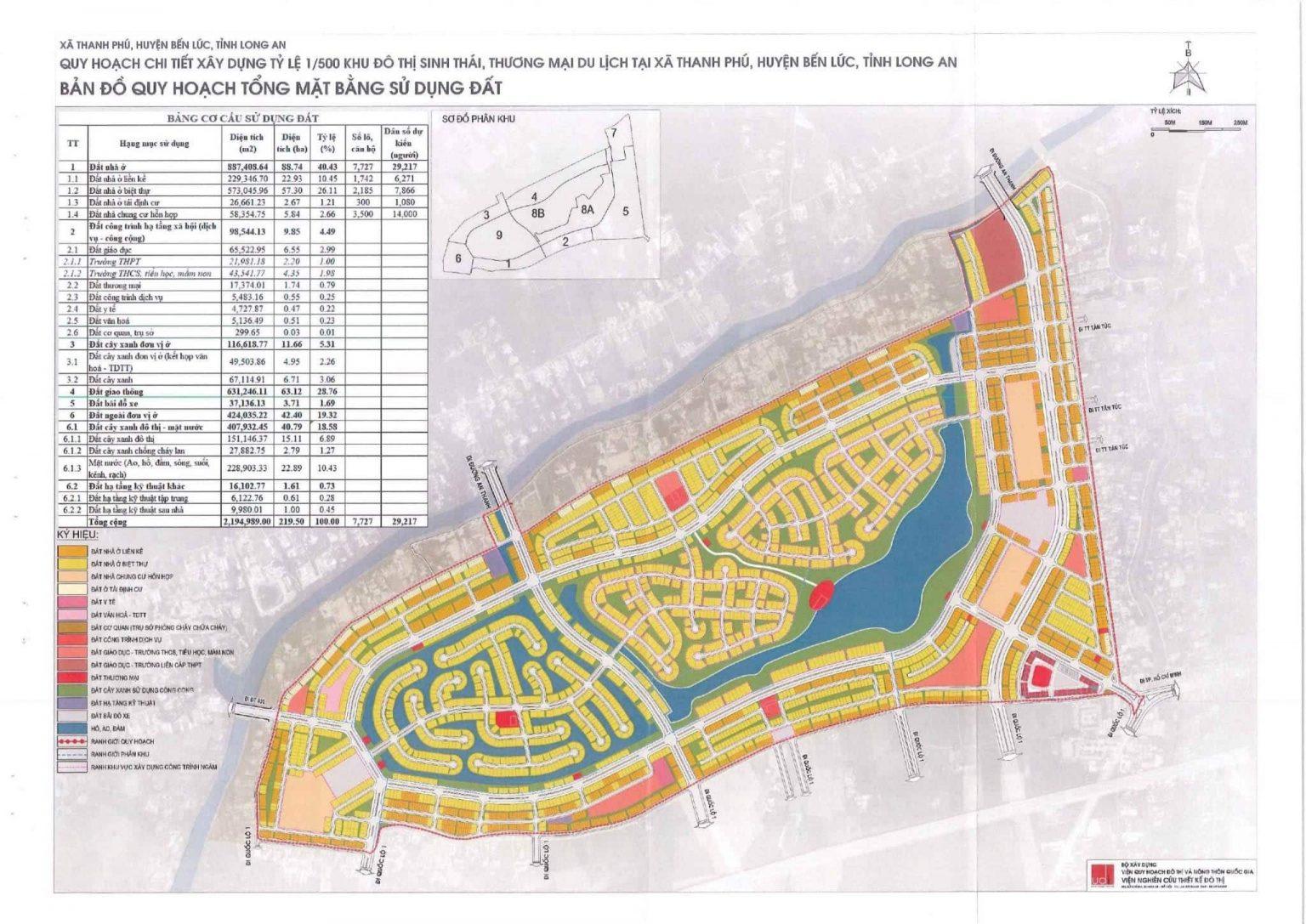
Quy hoạch chi tiết và cơ cấu sử dụng đất

Eco Retreat Long An có tổng quy mô 219,5ha, với cơ cấu sử dụng đất được phân bổ hợp lý nhằm tối ưu hóa không gian sống xanh và tiện ích cộng đồng.

Quy hoạch tổng thể các khu chức năng

Cơ cấu sử dụng đất chính

  • Đất xây dựng công trình nhà ở: 887.408,64m2 (Chiếm 40,43%).
  • Cây xanh: 524.551,22m2 (Chiếm 23,89%).
  • Đất giao thông: 668.382,24m2 (Chiếm 30,45%).
  • Công trình dịch vụ-công cộng: 98.544,13m2 (Chiếm 4,5%).
  • Đất hạ tầng kỹ thuật: 6.102,76m2 (Chiếm 0,73%).
Mô tả không gian xanh của dự án

Quy hoạch phân lô đất ở thấp tầng

Khu vực nhà ở thấp tầng chiếm 36,56% tổng diện tích, với tổng số 3.927 lô, được chia thành các loại hình sau:

Đất nhà liền kề (Liền Kề - LK)

Tổng diện tích: 229.346,70m2, bao gồm 1.742 lô. Xây tối đa 3 tầng (trừ lô 5-LK02 có tầng cao từ 3-5 tầng).

  • Khu 1 (1-LK01 - 1-LK14): 211 lô, diện tích 90,00m2 đến 237,50m2.
  • Khu 2 (2-LK01 - 2-LK06): 134 lô, diện tích 90,00m2 đến 190,00m2.
  • Khu 3 (3-LK01 - 3-LK14): 116 lô, diện tích 120,00m2 đến 273,92m2.
  • Khu 4 (4-LK01 - 4-LK18): 356 lô, diện tích 87,50m2 đến 226,95m2.
  • Khu 5 (5-LK01 - 5-LK38): 593 lô, diện tích 81,00m2 đến 333,08m2.
  • Khu 6 (6-LK01 - 6-LK07): 105 lô, diện tích 84,50m2 đến 214,70m2.
  • Khu 7 (7-LK01 - 7-LK08): 205 lô, diện tích 80,00m2 đến 255,87m2.
  • Khu 8A (8A-LK01): 22 lô, diện tích 108,00m2 đến 228,38m2.
Phối cảnh khu nhà liền kề

Đất ở nhà biệt thự (Biệt Thự - BT)

Tổng diện tích: 573.045,96m2, bao gồm 2.185 lô. Xây tối đa 2-3 tầng.

  • Khu 1 (1-BT01 - 1-BT17): 88 lô, diện tích 177,00m2 đến 363,71m2.
  • Khu 2 (2-BT01 - 2-BT11): 151 lô, diện tích 162,00m2 đến 315,00m2.
  • Khu 3 (3-BT01 - 3-BT12): 115 lô, diện tích 180,00m2 đến 389,26m2.
  • Khu 4 (4-BT01 - 4-BT17): 314 lô, diện tích 157,69m2 đến 584,79m2.
  • Khu 5 (5-BT01 - 5-BT11): 198 lô, diện tích 161,99m2 đến 507,84m2.
  • Khu 6 (6-BT01 - 6-BT15): 116 lô, diện tích 171,00m2 đến 424,03m2.
  • Khu 7 (7-BT01 - 7-BT04): 58 lô, diện tích 162,00m2 đến 369,34m2.
  • Khu 8A (8A-BT01 - 8A-BT07): 76 lô, diện tích 220,00m2 đến 590,90m2.
  • Khu 8B (8B-BT01 - 8B-BT30; 8B-BT32 - 8B-BT37): 586 lô, diện tích 219,23m2 đến 590,84m2.
  • Khu 9 (9-BT01 - 9-BT21): 483 lô, diện tích 189,99m2 đến 696,45m2.
Phối cảnh khu biệt thự sang trọng

Đất nhà tái định cư (TDC)

Tổng diện tích: 26.661,23m2 (chiếm 1,21%), bao gồm 300 lô. Xây tối đa 3 tầng.

  • Khu 3 (3-TDC01 - 3-TDC02): 129 lô, diện tích 83,92m2 đến 95,44m2.
  • Khu 4 (4-TDC01 - 4-TDC04): 51 lô, diện tích 90,00m2 đến 100,03m2.
  • Khu 5 (5-TDC01 - 5-TDC05): 64 lô, diện tích 81,00m2 đến 97,85m2.
  • Khu 7 (7-TDC01 - 7-TDC02): 56 lô, diện tích 80,17m2 đến 94,92m2.

Đất nhà chung cư hỗn hợp

Khu chung cư hỗn hợp có tổng diện tích 58.354,75m2 (chiếm 2,66%), được quy hoạch xây tối đa 41 tầng, cung cấp khoảng 3.500 căn hộ, đáp ứng nhu cầu nhà ở đa dạng cho cư dân.

Phối cảnh khu căn hộ cao tầng Eco Retreat Long An

Đất thương mại (TM)

Khu vực thương mại có diện tích 4.359,14m2, bao gồm 115 lô (5-TM4 - 5-TM10), với diện tích mỗi lô từ 27,20m2 đến 68,00m2, phục vụ các hoạt động kinh doanh, dịch vụ.

Hệ thống tiện ích nội khu đa dạng - Khu rừng trị liệu

Dự án Eco Retreat Long An được thiết kế độc đáo như một "khu rừng trị liệu" (healing resort), chú trọng vào việc cung cấp các tiện ích giúp cư dân thư giãn, tái tạo năng lượng và nâng cao chất lượng cuộc sống.

Hồ Thiên Nga 12ha trong lòng dự án

Tiện ích nổi bật

  • Hồ Thiên Nga rộng 12ha, tạo cảnh quan và điều hòa không khí.
  • Suối khoáng nóng, mang đến trải nghiệm nghỉ dưỡng và chăm sóc sức khỏe.
  • Hệ thống các loại vườn đa dạng: Vườn thư giãn, vườn thiền, vườn dạo bộ, vườn Vitamin D, vườn trí tuệ, vườn trái cây…
  • Các khu chức năng cho sức khỏe: Yoga, Spa.
  • Không gian công cộng: Quảng trường, công viên, khu vui chơi trẻ em, khu thể thao ngoài trời.
  • Tiện ích giáo dục và thương mại: Trường học, Trung tâm thương mại, nhà hàng.
Khu tiện ích công cộng và thương mại

Các loại tiện ích dịch vụ chi tiết

Dự án tích hợp đầy đủ các tiện ích phục vụ đời sống hàng ngày của cư dân:

  • Cơ sở hạ tầng và an ninh: Bãi đỗ xe, HT An ninh, HT Điều hòa, Lối thoát hiểm, Hệ thống PCCC, Thang máy.
  • Thể thao và giải trí: Sân Tennis, Sân bóng đá, BBQ, Công viên, Đường chạy bộ, Phòng Gym, Phòng Yoga, Hồ bơi, Phòng sinh hoạt.
  • Chăm sóc sức khỏe và làm đẹp: Phòng xông hơi, Spa, Trạm y tế.
  • Thương mại và dịch vụ: Siêu thị, Cửa hàng tiện lợi, Lễ tân, Coffee, Nhà hàng, Trung tâm thương mại.
Tiện ích hồ bơi và khu vực thư giãn

Kết luận

Eco Retreat Long An (Ecopark Bến Lức) không chỉ là một khu đô thị thông thường mà là một không gian sống lý tưởng, nơi cư dân được tận hưởng sự cân bằng giữa tiện nghi hiện đại và thiên nhiên trong lành. Với quy hoạch bài bản, vị trí chiến lược và hệ thống tiện ích đẳng cấp, dự án hứa hẹn mang lại giá trị đầu tư và giá trị sống bền vững tại khu vực Long An.

Cổng chào và lối vào dự án
Vườn thư giãn trong khu đô thị
Không gian xanh và công viên nội khu
Khu vui chơi trẻ em ngoài trời
Đường dạo bộ ven hồ
Khu vực quảng trường
Cảnh quan buổi tối
Phối cảnh tổng thể dự án từ trên cao


Vị trí

Xã Thanh Phú, Huyện Bến Lức, Long An.


Video dự án

Chia sẻ dự án này:



Viết đánh giá

Vui lòng đăng nhập để viết đánh giá!




Liên hệ

Máy tính thế chấp

$

Kéo thanh trượt hoặc nhập số tiền bạn muốn vay

80% 100%
$
%/năm
$

Tính Thế Chấp Của Bạn

Nhập giá bất động sản và thông tin khoản vay ở trên để xem khoản thanh toán hàng tháng ước tính và tổng lãi suất.

Bảng khấu hao

Số tiền vay 0 $
Tổng lãi 0 $
Tổng số tiền 0 $