Tổng quan
Trạng thái:  Đã bán
Giá:  88₫ - 106₫
Mô tả

Đánh Giá Chi Tiết Dự Án Chung Cư CT2B Nghĩa Đô: Điểm Sáng Bất Động Sản Tây Nam Thủ Đô

Dự án CT2B Nghĩa Đô là một phần quan trọng nằm trong quần thể Khu đô thị Nghĩa Đô, một khu vực đang phát triển nhanh chóng và sầm uất bậc nhất tại Hà Nội. Với vị trí đắc địa, thiết kế hiện đại theo phong cách châu Âu, cùng hệ thống tiện ích đồng bộ, CT2B Nghĩa Đô không chỉ là nơi an cư lý tưởng mà còn là lựa chọn đầu tư hấp dẫn tại phía Tây Nam Thủ đô.

Phối cảnh tổng thể chung cư CT2B Nghĩa Đô

Tổng Quan Thông Tin Dự Án CT2B Nghĩa Đô

Dự án chung cư CT2B Nghĩa Đô được xây dựng trên cơ sở sự đồng nhất về kiến trúc thiết kế và chất lượng của tất cả các chung cư cao cấp nằm trong Khu đô thị mới Nghĩa Đô. Tổng thể khu đô thị được quy hoạch trên diện tích 8.2ha, bao gồm 6 tòa tháp cao từ 19 đến 25 tầng và 57 lô biệt thự nhà vườn sang trọng theo phong cách Âu Châu. Tòa CT2B là một trong sáu tòa tháp này, mang đến một không gian sống hiện đại và tiện nghi cho cư dân.

Thông tin chung

  • Tên dự án: CT2B Nghĩa Đô
  • Chủ đầu tư: Công ty CP Đầu tư và Xây dựng số 1 Hà Nội
  • Đơn vị hợp tác phát triển dự án: Công ty CP Đầu tư và Bất động sản Á - Âu
  • Đơn vị tư vấn giám sát: Công ty CP TEXO Tư vấn và Đầu tư
  • Nhà thầu thi công: Công ty CP Xây dựng số 5
  • Tiếp thị và phân phối: Đất Xanh Miền Bắc và Liên Minh G5
  • Địa chỉ: Phường Cổ Nhuế 1, Bắc Từ Liêm, Hà Nội.
  • Quy mô: 19 tầng với 288 căn hộ.
  • Diện tích khu đất: 4.602 m²
  • Diện tích xây dựng: 1.795 m²
  • Khởi công xây dựng: Tháng 2/2014
  • Bàn giao dự án: Quý II/2016
Một góc khu đô thị mới Nghĩa Đô

Vị Trí Đắc Địa và Tiềm Năng Phát Triển

Căn hộ CT2B Nghĩa Đô nằm trong Khu đô thị mới Nghĩa Đô, tọa lạc ở phía Tây - Nam Thủ đô. Đây là khu vực được đánh giá có tốc độ phát triển nhanh và nhộn nhịp bậc nhất thành phố. Lợi thế vị trí của dự án được thể hiện rõ ràng qua khả năng kết nối và hạ tầng xung quanh.

Liên kết vùng và giao thông thuận tiện

Dự án nằm trên con đường huyết mạch của Thủ đô là đường Hoàng Quốc Việt, tạo điều kiện kết nối dễ dàng tới các khu đô thị, khu dân cư và các khu hành chính quan trọng của thành phố như Khu đô thị Mỹ Đình, Khu đô thị Nam Thăng Long. Phía Bắc dự án tiếp giáp trực tiếp với tuyến đường Phạm Văn Đồng, và phía Nam tiếp giáp với trục đường Hoàng Quốc Việt lộng lẫy.

Đặc biệt, CT2B Nghĩa Đô nằm tiếp giáp với Khu đô thị Tây Hồ Tây, khu vực đã được phê duyệt quy hoạch chi tiết. Khu đô thị mới Tây Hồ Tây được mệnh danh là trung tâm tài chính, thương mại, ngân hàng, khách sạn cao cấp, quảng trường trung tâm, dịch vụ quốc tế, trục đi bộ, mặt nước, cây xanh và nhà ở. Sự hiện diện của khu đô thị kiểu mẫu lớn bậc nhất Miền Bắc này đã góp phần kiến tạo cấu trúc “tươi sáng – sôi động – hiện đại” theo phong cách Âu Châu cho toàn bộ khu vực.

Vị trí chung cư CT2B Nghĩa Đô

Khi đứng trên tầng cao của chung cư CT2B Nghĩa Đô, các cư dân có thể ngắm nhìn vẻ đẹp của Thủ đô về đêm, đặc biệt là khung cảnh tuyệt vời của Hồ Tây, mang lại một trải nghiệm sống thư thái và đẳng cấp.

Cộng đồng và tiện ích ngoại khu

Khu vực xung quanh CT2B Nghĩa Đô là một cộng đồng cư dân sầm uất và năng động. Dự án nằm cạnh tòa nhà CT1, CT3 của Nam Cường, tòa nhà của Tổng Cục V và tòa nhà của Bộ Công An đối diện, đảm bảo an ninh và văn minh. Khu vực này cũng tập trung nhiều trường đại học và bệnh viện lớn, đáp ứng tối đa nhu cầu học tập và chăm sóc sức khỏe của cư dân.

Thiết Kế Căn Hộ và Chất Lượng Xây Dựng

Chủ đầu tư đã thiết kế dự án CT2B Nghĩa Đô theo mô hình những tòa nhà sang trọng có đường nét mềm mại, với phong cách kiến trúc châu Âu hiện đại. Mục tiêu là xây dựng một quần thể đô thị hiện đại, đa dụng và trong lành cho cộng đồng cư dân.

Kiến trúc và nội thất

Các căn hộ tại CT2B Nghĩa Đô được thiết kế với kiến trúc hiện đại, sảnh ốp đá cao cấp, tường ngoài ốp gạch thẻ và các ô cửa sổ sang trọng, hài hòa. Tổng thể kiến trúc tạo nên hình dáng của một góc thành phố phương Tây, là điểm nhấn đầy duyên dáng và hấp lực trong phong cách kiến trúc tại đô thị mới Nghĩa Đô.

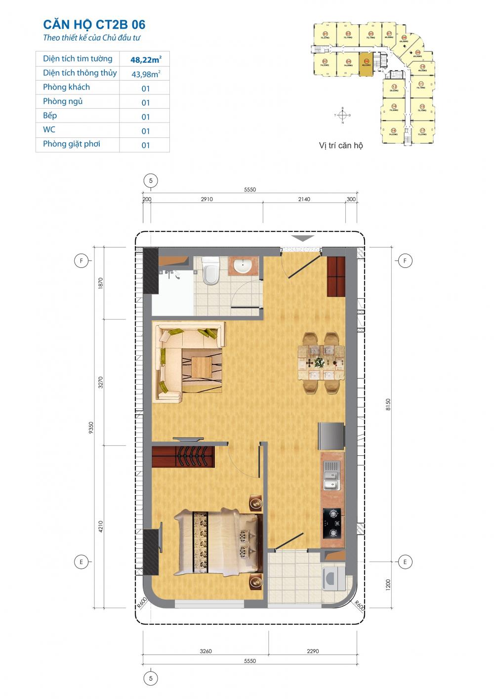
Tòa CT2B có chiều cao 19 tầng, cung cấp 288 căn hộ. Diện tích căn hộ đa dạng, phù hợp với nhiều nhu cầu an cư khác nhau, bao gồm các loại diện tích: 48m², 49m², 59m², 73m², 74m², 75m².

Thiết kế căn hộ hiện đại tại CT2B Nghĩa Đô

Hệ thống kỹ thuật và cơ sở hạ tầng

Chủ đầu tư rất chú trọng đến chất lượng công trình và hệ thống cơ sở hạ tầng đồng bộ. Chung cư CT2B Nghĩa Đô được trang bị nhiều hệ thống hiện đại để nâng cao chất lượng cuộc sống:

  • Hệ thống điều hòa không khí hiện đại, được giấu trong các loggia, tăng tính hài hòa và sang trọng cho tòa nhà.
  • Thang máy tốc độ cao được thiết kế hợp lý.
  • Hành lang và sảnh thang máy được ốp lát đá granite cao cấp.
  • Toàn bộ hệ thống cửa sổ của các căn hộ đều dùng nhựa uPVC, giúp giảm thiểu tối đa tiếng ồn đô thị, đảm bảo không gian yên tĩnh và chất lượng cuộc sống cho cư dân.
Hệ thống tiện ích nội khu

Tiện Ích Nội Khu và Ngoại Khu Hấp Dẫn

Tòa tháp chung cư cao cấp CT2B được hưởng toàn bộ tiện ích nội khu hiện đại của dự án Khu đô thị mới Nghĩa Đô. Các tiện ích này được xây dựng nhằm mang lại một cuộc sống đầy đủ, tiện nghi và trong lành cho cộng đồng cư dân.

Tiện ích nội khu

Cư dân tại CT2B Nghĩa Đô sẽ được tận hưởng:

  • Đảo cây xanh: Tạo không gian xanh mát, điều hòa không khí.
  • Cung đường chạy bộ: Phục vụ nhu cầu rèn luyện sức khỏe.
  • Hệ thống an ninh: Đảm bảo an toàn 24/7.
  • Cơ sở hạ tầng đồng bộ.
  • Siêu thị mini: Đáp ứng nhu cầu mua sắm hàng ngày.
  • Và rất nhiều tiện ích hấp dẫn khác.
Không gian xanh và đường nội bộ

Cơ Hội Đầu Tư và Chính Sách Tài Chính

Với vị trí đắc địa tại khu vực có tốc độ phát triển nhanh, cộng đồng cư dân sầm uất và thiết kế chuẩn mực, CT2B Nghĩa Đô được đánh giá cao về giá trị đầu tư và an cư.

Giá bán và khoảng giá

Giá bán chung cư CT2B Nghĩa Đô dao động trong khoảng 88 - 106,06 triệu/m² (theo dữ liệu cung cấp). Hoặc theo thông tin khác, giá bán chung cư CT2B Nghĩa Đô dao động khoảng 28 triệu/m². Đây là mức giá cạnh tranh so với các dự án cùng phân khúc trong khu vực tiếp giáp Khu đô thị Tây Hồ Tây.

Tiến độ thanh toán và hỗ trợ tài chính

Dự án có tiến độ thanh toán linh hoạt, được chia thành nhiều đợt, giúp khách hàng dễ dàng quản lý tài chính:

  • Đặt cọc: 50 triệu, ký hợp đồng đặt mua trong vòng 30 ngày.
  • Đợt 1: Đóng 20% sau khi ký hợp đồng đặt mua 5 ngày.
  • Đợt 2: Đóng 10% sau khi ký hợp đồng mua bán.
  • Đợt 3: Đóng 15% khi đổ sàn tầng 5.
  • Đợt 4: Đóng 15% khi đổ sàn tầng 15.
  • Đợt 5: Đóng 10% khi đổ sàn tầng 25.
  • Đợt 6: Đóng 30% khi nhận nhà.
Phòng khách căn hộ mẫu tại CT2B Nghĩa Đô

Về hỗ trợ tài chính, nhiều ngân hàng lớn đã tham gia cung cấp dịch vụ cho vay mua nhà cho dự án CT2B Nghĩa Đô, bao gồm:

  • Techcombank
  • MB Bank
  • VPBank
  • BIDV

Các ngân hàng này hỗ trợ tài chính cho dự án CT2B Nghĩa Đô tới 75% giá trị căn hộ với thời gian vay lên tới 25 năm, tạo điều kiện thuận lợi cho người mua nhà.

Phòng ngủ căn hộ mẫu tại CT2B Nghĩa Đô

Đánh Giá Tổng Kết về CT2B Nghĩa Đô

CT2B Nghĩa Đô không chỉ đơn thuần là một dự án chung cư, mà là một phần của Khu đô thị mới Nghĩa Đô, một khu vực được định hướng trở thành khu đô thị sầm uất hàng đầu tại Hà Nội trong tương lai. Dự án nổi bật nhờ sự kết hợp hài hòa giữa vị trí chiến lược, thiết kế kiến trúc theo phong cách châu Âu, và hệ thống tiện ích nội khu hiện đại.

Việc nằm tiếp giáp với Khu đô thị mới Tây Hồ Tây, nơi được quy hoạch chi tiết để trở thành trung tâm tài chính, thương mại và dịch vụ quốc tế, mang lại cho CT2B Nghĩa Đô một lợi thế cạnh tranh vượt trội. Khu vực này thuộc địa giới hành chính các phường Nghĩa Đô (quận Cầu Giấy), phường Xuân La (quận Tây Hồ), xã Cổ Nhuế và xã Xuân Đỉnh (huyện Từ Liêm), tạo nên một trục tâm của các phân khu hành chính quan trọng.

Khu vực hành lang chung cư

Chủ đầu tư Công ty CP Đầu tư và Xây dựng số 1 Hà Nội cùng các đối tác đã cam kết mang lại một dự án chất lượng, với hệ thống hạ tầng kỹ thuật tiên tiến như điều hòa âm trần và cửa sổ uPVC chống ồn, nhằm đảm bảo chất lượng cuộc sống tốt nhất cho cư dân. Sự kiện bàn giao dự án vào Quý II/2016 khẳng định cam kết về tiến độ và chất lượng công trình.

Tóm lại, CT2B Nghĩa Đô đại diện cho một không gian sống "tươi sáng – sôi động – hiện đại" tại cửa ngõ Tây Nam thủ đô, là sự lựa chọn lý tưởng cho các gia đình tìm kiếm một môi trường sống đẳng cấp và tiện nghi, cũng như các nhà đầu tư nhìn thấy tiềm năng tăng trưởng mạnh mẽ của khu vực này.

Góc nhìn từ cửa sổ căn hộ

Dự án này đã chứng minh được sự hấp dẫn không chỉ qua thiết kế căn hộ mà còn qua những tiện ích mà khu đô thị mới Tây Hồ mang lại, hứa hẹn một cuộc sống thịnh vượng và sung túc cho mọi cư dân.

Nội thất phòng ăn căn hộ
Thiết kế ban công và loggia
Cổng vào khu đô thị Nghĩa Đô
Khuôn viên nội khu dự án
Quảng trường nhỏ trong khu đô thị
Cảnh quan dự án CT2B Nghĩa Đô


Vị trí

Phường Cổ Nhuế 1, Bắc Từ Liêm, Hà Nội.


Video dự án

Chia sẻ dự án này:



Viết đánh giá

Vui lòng đăng nhập để viết đánh giá!




Liên hệ

Máy tính thế chấp

$

Kéo thanh trượt hoặc nhập số tiền bạn muốn vay

80% 100%
$
%/năm
$

Tính Thế Chấp Của Bạn

Nhập giá bất động sản và thông tin khoản vay ở trên để xem khoản thanh toán hàng tháng ước tính và tổng lãi suất.

Bảng khấu hao

Số tiền vay 0 $
Tổng lãi 0 $
Tổng số tiền 0 $