Tổng quan
Trạng thái:  Đang bán
Mô tả

Amira Chơn Thành: Khám Phá Khu Đô Thị Sinh Thái Đẳng Cấp Bên Hồ Nha Bích – Nơi An Cư Lý Tưởng, Đầu Tư Vượt Trội

Amira Chơn Thành – Nơi Khởi Nguồn Cuộc Sống Thịnh Vượng Tại Bình Phước

Toàn cảnh dự án Amira Chơn Thành nhìn từ trên cao
Phối cảnh tổng thể dự án Amira Chơn Thành, khu đô thị xanh bên hồ.

Thị trường bất động sản Bình Phước đang chứng kiến sự bùng nổ mạnh mẽ, đặc biệt là tại Huyện Chơn Thành, nơi tập trung nhiều khu công nghiệp trọng điểm và sở hữu tiềm năng phát triển kinh tế vượt bậc. Trong bối cảnh đó, Amira Chơn Thành nổi lên như một điểm sáng đầy hứa hẹn, định hình một chuẩn mực mới cho phong cách sống hiện đại và bền vững. Với quy mô ấn tượng 55,4 hecta, dự án này không chỉ là một khu đô thị mà còn là một biểu tượng của sự hài hòa giữa tiện nghi sống đẳng cấp và không gian sinh thái tự nhiên, ngay cạnh hồ Nha Bích thơ mộng.

Amira Chơn Thành, được phát triển bởi Thiên An Holdings và đầu tư bởi Công ty TNHH Công nghiệp – Bất động sản và xây dựng Song Phương, mang đến một tầm nhìn dài hạn về một cộng đồng cư dân văn minh, hiện đại. Dự án này được kỳ vọng sẽ giải quyết hiệu quả nhu cầu nhà ở ngày càng tăng của đội ngũ lao động và chuyên gia tại Bình Phước và các khu vực lân cận, đồng thời mở ra cơ hội đầu tư bất động sản hấp dẫn cho những nhà đầu tư có tầm nhìn. Sự xuất hiện của Amira Chơn Thành khẳng định vị thế của Huyện Chơn Thành như một trung tâm phát triển mới, thu hút mạnh mẽ dòng vốn và dân cư.

Vị Trí Kim Cương, Kết Nối Vàng: Tầm Nhìn Chiến Lược Của Amira Chơn Thành

Bản đồ vị trí dự án Amira Chơn Thành
Sơ đồ vị trí chiến lược của Amira Chơn Thành tại Huyện Chơn Thành.

Vị trí địa lý luôn là yếu tố then chốt quyết định giá trị của một dự án bất động sản, và Amira Chơn Thành đã thể hiện ưu thế vượt trội trong khía cạnh này. Tọa lạc đắc địa trên đường Dương Gia Trang, thuộc ấp 7, xã Minh Thắng và ấp 6, xã Nha Bích, Huyện Chơn Thành, tỉnh Bình Phước, dự án thụ hưởng một vị trí trung tâm, dễ dàng tiếp cận mọi tiện ích và khu vực trọng điểm. Đặc biệt, việc nằm liền kề hồ sinh thái Nha Bích lớn nhất huyện không chỉ mang lại bầu không khí trong lành, cảnh quan tuyệt đẹp mà còn tạo nên giá trị độc tôn cho cư dân Amira Chơn Thành.

Không chỉ vậy, Amira Chơn Thành còn sở hữu một hệ thống kết nối giao thông chiến lược. Dự án nằm gần các tuyến giao thông huyết mạch như Quốc lộ 14 và Quốc lộ 13, hai trục đường chính kết nối Bình Phước với các tỉnh phía Nam. Hơn nữa, với tuyến cao tốc TP.HCM – Thủ Dầu Một – Chơn Thành sắp được triển khai, khả năng kết nối và giao thương của Amira Chơn Thành sẽ được nâng lên một tầm cao mới, rút ngắn đáng kể thời gian di chuyển đến các trung tâm kinh tế lớn. Điều này không chỉ thuận lợi cho việc đi lại hàng ngày của cư dân mà còn mở ra cơ hội phát triển thương mại và dịch vụ đầy tiềm năng, biến Amira Chơn Thành trở thành một lựa chọn an cư và đầu tư lý tưởng tại Bình Phước.

Kiến Tạo Không Gian Sống Lý Tưởng: Thiết Kế Hiện Đại Tại Amira Chơn Thành

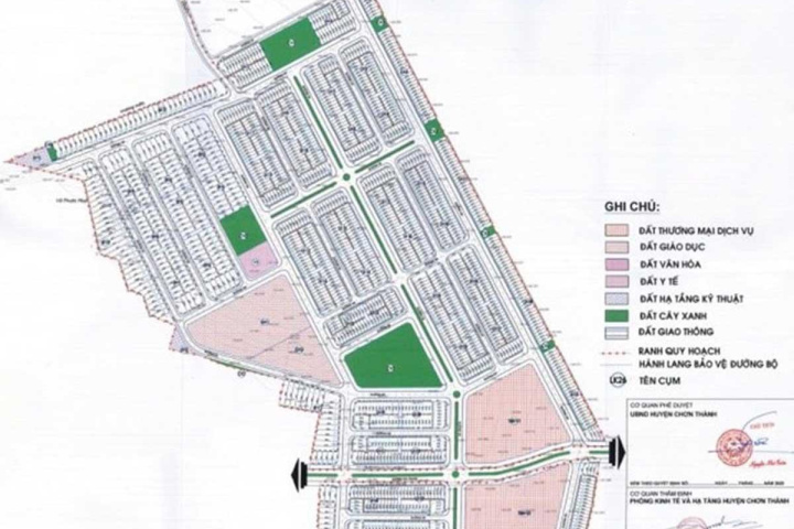
Tại Amira Chơn Thành, các nhà phát triển dự án đã dành nhiều tâm huyết để kiến tạo một không gian sống không chỉ hiện đại mà còn tối ưu hóa sự thoải mái và tiện nghi cho cư dân. Với tổng diện tích 55,4 hecta, dự án tập trung vào việc cung cấp các sản phẩm đất nền nhà phố và biệt thự, mang đến đa dạng lựa chọn cho khách hàng. Các lô đất nền có diện tích linh hoạt, phổ biến từ 90m² đến 150m², đáp ứng nhu cầu an cư của các gia đình trẻ, những người tìm kiếm không gian sống rộng rãi, cũng như các nhà đầu tư đang tìm kiếm sản phẩm shophouse hoặc liền kề có tiềm năng tăng giá trong tương lai.

Mặc dù thông tin chi tiết về thiết kế mặt bằng đang được cập nhật, dự án Amira Chơn Thành đã thể hiện rõ định hướng quy hoạch thông minh. Các lô đất được bố trí hài hòa, xen kẽ với hệ thống tiện ích nội khu, đảm bảo mỗi ngôi nhà đều có thể dễ dàng tiếp cận các dịch vụ công cộng và không gian xanh. Mục tiêu chính là tạo ra một khu đô thị có kiến trúc đồng bộ, hiện đại nhưng vẫn giữ được nét riêng biệt, tạo nên một cộng đồng cư dân đẳng cấp. Các sản phẩm đất nền tại đây không chỉ là tài sản mà còn là nền tảng để mỗi gia đình xây dựng tổ ấm ước mơ, tận hưởng cuộc sống chất lượng tại Huyện Chơn Thành.

Hệ Tiện Ích Đa Dạng – Nâng Tầm Chất Lượng Cuộc Sống Cư Dân Amira Chơn Thành

Phối cảnh một góc tiện ích nội khu Amira Chơn Thành
Không gian xanh và tiện ích hiện đại trong khu đô thị Amira Chơn Thành.

Amira Chơn Thành không chỉ gây ấn tượng bởi quy mô và vị trí, mà còn bởi hệ thống tiện ích nội khu đẳng cấp, chiếm đến 46% tổng diện tích quy hoạch. Điều này thể hiện cam kết của chủ đầu tư trong việc kiến tạo một môi trường sống toàn diện, nơi mọi nhu cầu của cư dân đều được đáp ứng. Cụ thể, dự án tích hợp 5 công viên nội khu xanh mát, mang đến không gian thư giãn, vui chơi lý tưởng cho mọi lứa tuổi. Đặc biệt, công viên ven hồ Nha Bích là điểm nhấn độc đáo, nơi cư dân có thể tận hưởng không khí trong lành, cảnh quan tuyệt đẹp và các hoạt động ngoài trời hấp dẫn. Ngoài ra, khu đô thị còn có nhà hàng sang trọng, khu thể thao đa năng, phố thương mại sầm uất để phục vụ nhu cầu mua sắm và giải trí, cùng phố đêm sôi động, mang đến những trải nghiệm sống đa sắc màu.

Bên cạnh tiện ích nội khu phong phú, cư dân Amira Chơn Thành còn dễ dàng tiếp cận hàng loạt tiện ích ngoại khu hiện hữu và đa dạng. Chỉ trong vài phút di chuyển, bạn có thể đến chợ Minh Lập, chợ Chơn Thành để mua sắm nhu yếu phẩm, hoặc tiếp cận các dịch vụ y tế tại Bệnh viện Hoàn Mỹ Bình Phước. Đối với những ai yêu thích khám phá và giải trí, khu du lịch sinh thái hồ Phước Hòa, sân golf FLC, sân bóng đá Trọng Hổ, hồ câu Mũi Dùi, đảo ngọc Minh Thành và sân golf Minh Thắng đều nằm trong tầm với. Tất cả những yếu tố này hợp thành một môi trường sống lý tưởng, nơi bạn và gia đình có thể tận hưởng trọn vẹn cuộc sống tiện nghi, năng động và gần gũi thiên nhiên tại Huyện Chơn Thành, Bình Phước.

Pháp Lý Vững Chắc, Tiến Độ Đảm Bảo: Niềm Tin Vững Chãi Cùng Amira Chơn Thành

Hình ảnh công trường dự án Amira Chơn Thành đang trong quá trình xây dựng
Cập nhật tiến độ thi công tại dự án Amira Chơn Thành.

Một trong những yếu tố quan trọng nhất mà mọi khách hàng và nhà đầu tư đều quan tâm khi lựa chọn một dự án bất động sản chính là tính pháp lý. Amira Chơn Thành tự hào sở hữu một nền tảng pháp lý vững chắc, minh bạch, đảm bảo quyền lợi tối đa cho các nhà đầu tư và cư dân tương lai. Dự án đã hoàn thiện đầy đủ các giấy tờ pháp lý theo quy định của pháp luật, bao gồm Quyết định chủ trương đầu tư số 1809/QĐ-UBND ký ngày 27/8/2019, Quyết định phê duyệt đề án quy hoạch 1/500 số 100/QĐ-UBND ký ngày 10/2/2022, Quyết định chấp thuận chuyển mục đích sử dụng đất, giao đất và cho công ty Song Phương thuê đất số 1865/QĐ-UBND ngày 10/10/2022, và Giấy phép xây dựng số 188/GPXD cấp ngày 21/10/2022. Những văn bản này không chỉ khẳng định tính hợp pháp của dự án mà còn tạo dựng niềm tin tuyệt đối cho khách hàng khi quyết định đầu tư vào Amira Chơn Thành.

Về tiến độ xây dựng, dự án Amira Chơn Thành đã chính thức khởi công vào ngày 25/10/2022. Điều này cho thấy chủ đầu tư đang tích cực triển khai dự án theo đúng kế hoạch đã đề ra. Với sự quản lý chặt chẽ và kinh nghiệm của Công ty TNHH Công nghiệp – Bất động sản và xây dựng Song Phương cùng Thiên An Holdings, tiến độ thi công được đảm bảo sẽ diễn ra nhanh chóng và chất lượng. Khách hàng có thể hoàn toàn yên tâm về việc dự án sẽ được bàn giao đúng hạn, mang đến một không gian sống hoàn chỉnh và sẵn sàng chào đón những cư dân đầu tiên. Việc theo dõi sát sao tiến độ và sự minh bạch về pháp lý là cam kết của Amira Chơn Thành nhằm xây dựng một cộng đồng bền vững và thịnh vượng tại Bình Phước.

Amira Chơn Thành: Cơ Hội Đầu Tư Vàng & An Cư Lý Tưởng Tại Miền Đất Hứa

Tổng kết lại, Amira Chơn Thành không chỉ là một dự án bất động sản thông thường mà còn là một khu đô thị sinh thái kiểu mẫu, mang đến một phong cách sống đẳng cấp và khác biệt tại Huyện Chơn Thành, Bình Phước. Với vị trí đắc địa kề hồ Nha Bích, hệ thống giao thông thuận tiện kết nối các tuyến huyết mạch và cao tốc tương lai, dự án này mở ra tiềm năng tăng trưởng giá trị vượt trội trong dài hạn. Chủ đầu tư đã khéo léo kết hợp giữa không gian sống xanh mát và hệ thống tiện ích nội khu đa dạng, từ công viên, khu thể thao đến phố thương mại và trường học, đảm bảo mọi nhu cầu của cư dân đều được đáp ứng một cách trọn vẹn nhất.

Đối với các nhà đầu tư, Amira Chơn Thành cung cấp các sản phẩm đất nền nhà phố, biệt thự, và tiềm năng phát triển shophouse, liền kề với pháp lý vững chắc và tiến độ thi công rõ ràng, tạo nên sự an tâm tuyệt đối. Dự án không chỉ đáp ứng nhu cầu an cư của người dân địa phương và các chuyên gia làm việc tại các khu công nghiệp lân cận mà còn hứa hẹn trở thành một điểm đến lý tưởng cho những ai đang tìm kiếm một cuộc sống chất lượng cao, gần gũi thiên nhiên nhưng không kém phần hiện đại và tiện nghi. Amira Chơn Thành chính là cơ hội vàng để bạn sở hữu một phần của tương lai thịnh vượng tại Bình Phước, một quyết định đầu tư thông minh cho cuộc sống và tài chính.



Vị trí

Đường Dương Gia Trang, Xã Minh Thắng, Huyện Chơn Thành, Bình Phước.


Video dự án

Chia sẻ dự án này:



Viết đánh giá

Vui lòng đăng nhập để viết đánh giá!




Liên hệ

Máy tính thế chấp

$

Kéo thanh trượt hoặc nhập số tiền bạn muốn vay

80% 100%
$
%/năm
$

Tính Thế Chấp Của Bạn

Nhập giá bất động sản và thông tin khoản vay ở trên để xem khoản thanh toán hàng tháng ước tính và tổng lãi suất.

Bảng khấu hao

Số tiền vay 0 $
Tổng lãi 0 $
Tổng số tiền 0 $