Dự án The Inter5: Tâm Điểm Đầu Tư Và An Cư Tại Cửa Ngõ Phía Tây Hải Phòng
The Inter5 không chỉ là một dự án bất động sản; đây là một khu phức hợp nhà ở thương mại và căn hộ cao tầng được quy hoạch bài bản, hứa hẹn mang lại không gian sống đẳng cấp và cơ hội đầu tư sinh lời vượt trội tại cửa ngõ phía Tây thành phố Hải Phòng. Được phát triển bởi Công ty TNHH Đầu tư FANTASEA, dự án tọa lạc tại vị trí chiến lược, số 187 Tôn Đức Thắng, xã An Đồng, huyện An Dương (nay là phường An Hải).

Tổng Quan Dự Án The Inter5
Dự án The Inter5 là sự kết hợp hài hòa giữa nhà ở thương mại liền kề, shophouse và căn hộ cao tầng, tạo nên một cộng đồng cư dân đa năng và hiện đại. Với quy mô 1,73 ha, dự án được đầu tư xây dựng nhằm đáp ứng nhu cầu nhà ở chất lượng cao và phát triển thương mại tại khu vực đang có tốc độ đô thị hóa nhanh chóng này.
Chủ đầu tư, Công ty TNHH Đầu tư FANTASEA, đã dành nhiều tâm huyết để kiến tạo một không gian sống không chỉ tiện nghi mà còn chú trọng đến yếu tố xanh và dịch vụ. Dự án bao gồm các sản phẩm đa dạng, phù hợp với nhiều đối tượng khách hàng từ nhà đầu tư đến các gia đình tìm kiếm nơi an cư lý tưởng.
Cụ thể về quy mô và sản phẩm:
The Inter5 có tổng diện tích đất 17.332m2, phân bổ như sau:
- Đất nhà ở liền kề: 7.351m2
- Đất tòa nhà hỗn hợp: 2.226m2
- Đất cây xanh: 2.036m2
- Đất giao thông: 5.944m2
Sản phẩm chính của dự án bao gồm 76 căn nhà phố thương mại liền kề/shophouse và một tòa chung cư cao cấp cao 24 tầng nổi mang tên The Inter5 Residences.
Vị Trí Đắc Địa - Lợi Thế Kết Nối
Vị trí là một trong những yếu tố then chốt làm nên giá trị của The Inter5. Dự án tọa lạc tại Số 187 Tôn Đức Thắng, xã An Đồng, huyện An Dương (Nay là phường An Hải), TP Hải Phòng. Đây được xem là cửa ngõ phía Tây của thành phố, nơi giao thoa của các tuyến giao thông huyết mạch, dễ dàng kết nối đến trung tâm thành phố và các khu vực lân cận.
Tuyến đường Tôn Đức Thắng là trục chính quan trọng, đảm bảo khả năng di chuyển thuận lợi cho cư dân. Sự hiện diện của dự án tại đây không chỉ phục vụ nhu cầu an cư mà còn mở ra tiềm năng thương mại lớn cho các căn shophouse và nhà liền kề. Khả năng tiếp cận các dịch vụ công cộng, trường học, bệnh viện trong khu vực được đảm bảo nhờ vào hạ tầng giao thông đồng bộ của Quận An Dương.
Thiết Kế Đột Phá Và Đa Dạng Sản Phẩm
Thiết kế của The Inter5 được tối ưu hóa để tận dụng tối đa diện tích và ánh sáng tự nhiên, mang lại không gian sống thoáng đãng và hiện đại.

Nhà Phố Thương Mại Liền Kề
Khu nhà phố liền kề được chia thành hai phân khu chính, mỗi phân khu mang một phong cách riêng biệt nhưng đều đảm bảo chất lượng xây dựng và thẩm mỹ cao:
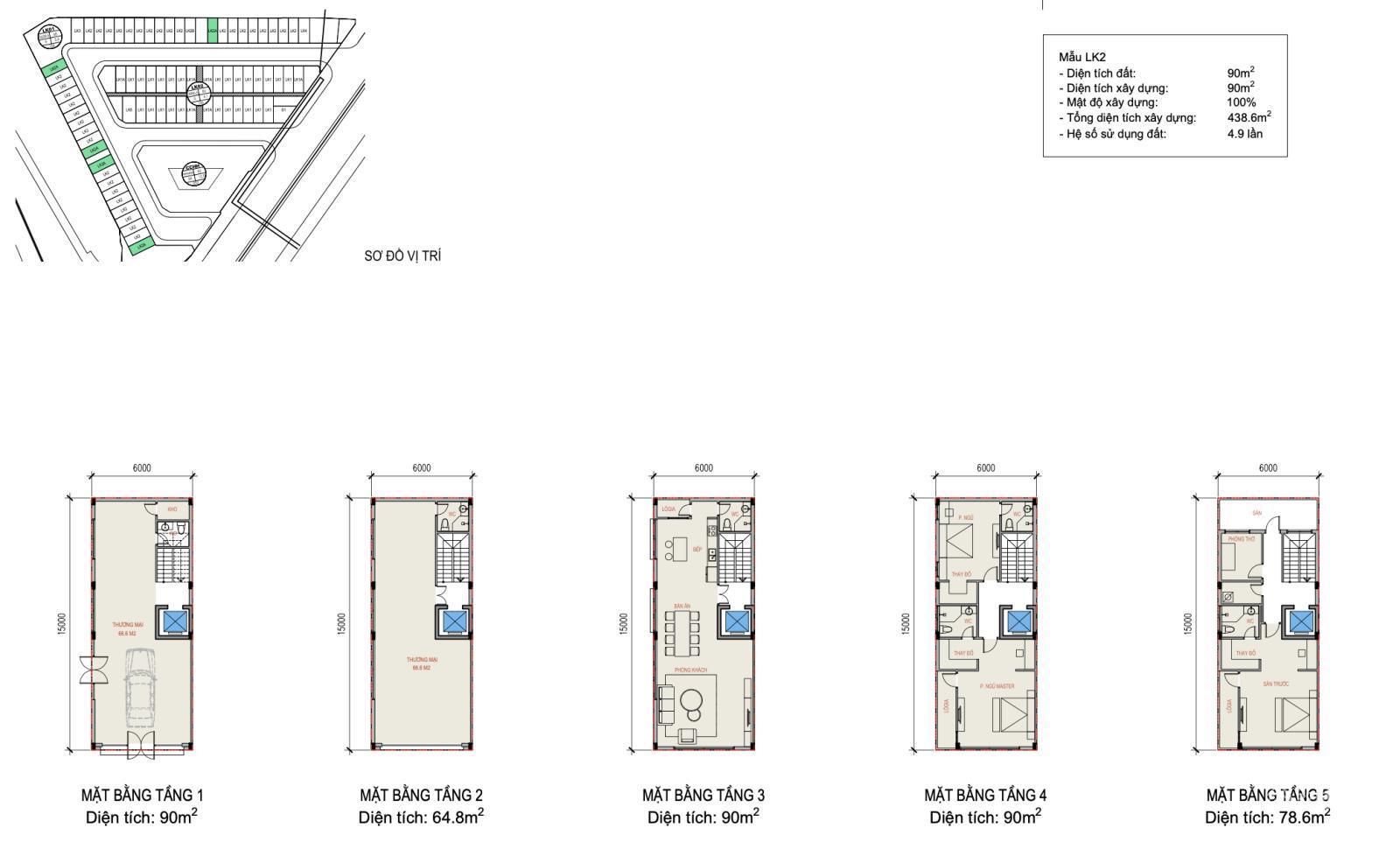
Phân khu Victory: Gồm 34 căn, với diện tích đa dạng từ 96m2 đến 126m2. Đây là lựa chọn lý tưởng cho các gia đình muốn kết hợp giữa không gian sống tiện nghi và mặt bằng kinh doanh.
Phân khu Legacy: Gồm 42 căn, diện tích từ 90m2 đến 113.9m2. Phân khu này nhấn mạnh vào giá trị truyền thống và sự bền vững, mang lại một tài sản có giá trị lâu dài.
Tòa Chung Cư The Inter5 Residences
Tòa chung cư cao 24 tầng nổi là biểu tượng hiện đại của dự án. The Inter5 Residences cung cấp các căn hộ cao cấp, được thiết kế thông minh, tối ưu hóa công năng sử dụng. Với chiều cao nổi bật, cư dân sẽ được tận hưởng tầm nhìn toàn cảnh thành phố Hải Phòng, cùng với các dịch vụ và tiện ích nội khu hiện đại phục vụ riêng cho cư dân chung cư.

Hệ Thống Tiện Ích Đa Dạng và Đẳng Cấp
Một điểm nổi bật không thể bỏ qua tại The Inter5 chính là hệ thống tiện ích nội khu được đầu tư kỹ lưỡng, nhằm nâng cao chất lượng cuộc sống và trải nghiệm thư giãn cho cư dân.

Tiện Ích Ngoại Khu và Cảnh Quan
Khu vực cảnh quan được thiết kế tinh tế với nhiều mảng xanh, tạo môi trường sống trong lành:
- Cổng chào ấn tượng.
- Đồi nghệ thuật và biểu tượng The Inter5, là điểm nhấn thẩm mỹ cho toàn dự án.
- Máy tập thể thao ngoài trời, khuyến khích lối sống năng động.
- Đường dạo bộ, ghế nghỉ, và vườn cây đặc trưng như Vườn tường vi, Vườn mẫu đơn, Vườn lộc vừng.
- Khu thư giãn ngoài trời, Chòi nghỉ, và Xích đu, tạo không gian thư thái cho mọi lứa tuổi.

Tiện Ích Phục Vụ Cộng Đồng và Thương Mại
Ngoài các tiện ích cảnh quan, The Inter5 còn cung cấp một loạt các tiện ích phục vụ đời sống hàng ngày, đảm bảo sự tiện lợi tối đa cho cư dân:
- Bãi đỗ xe rộng rãi.
- Công viên và Đường chạy bộ cho các hoạt động thể chất.
- Phòng Gym hiện đại.
- Hệ thống An ninh (HT An ninh) và Lối thoát hiểm, đảm bảo an toàn tuyệt đối.
- Hệ thống PCCC tiêu chuẩn.
- Phòng sinh hoạt cộng đồng.
- Khu Vui chơi trẻ em.
- Các dịch vụ thương mại: Cửa hàng tiện lợi, Coffee, Nhà hàng, và Trung tâm thương mại.
- Thang máy tốc độ cao phục vụ cư dân chung cư.

Sự kết hợp giữa tiện ích xanh và tiện ích dịch vụ đã giúp The Inter5 trở thành một nơi an cư lý tưởng, nơi cư dân có thể tận hưởng cuộc sống trọn vẹn mà không cần phải di chuyển xa.
Cơ Hội Đầu Tư và Giá Trị Bền Vững
Với vị trí chiến lược tại cửa ngõ phía Tây Hải Phòng, khu vực đang phát triển mạnh mẽ về cơ sở hạ tầng, The Inter5 không chỉ cung cấp một nơi ở mà còn là một khoản đầu tư thông minh.
Các căn nhà phố thương mại liền kề với chức năng kép (ở và kinh doanh) có khả năng sinh lời cao từ việc cho thuê mặt bằng hoặc tự kinh doanh. Trong khi đó, các căn hộ tại The Inter5 Residences đáp ứng nhu cầu nhà ở cao cấp đang gia tăng tại thành phố cảng, đảm bảo tính thanh khoản và tăng trưởng giá trị trong tương lai.

Dự án được triển khai bởi Công ty TNHH Đầu tư FANTASEA, một đơn vị uy tín, cam kết về chất lượng và tiến độ. Mặc dù thông tin chi tiết về giá bán và pháp lý chưa được cập nhật đầy đủ trong dữ liệu, tiềm năng vị trí và quy hoạch tổng thể đã cho thấy The Inter5 là một lựa chọn đáng cân nhắc cho các nhà đầu tư và người mua nhà tại Hải Phòng.

Khu nhà phố liền kề, đặc biệt các căn thuộc phân khu Victory và Legacy, với diện tích xây dựng linh hoạt, hứa hẹn sẽ mang lại không gian sống thoáng đãng cho chủ nhân. Thiết kế 24 tầng của tòa chung cư The Inter5 Residences cũng đảm bảo cung cấp một lượng lớn căn hộ hiện đại ra thị trường, góp phần giải quyết nhu cầu nhà ở đô thị.
Tóm lại, The Inter5 không chỉ đơn thuần là một dự án bất động sản, mà còn là một khu đô thị thu nhỏ, tích hợp đầy đủ các yếu tố từ vị trí, thiết kế, đến hệ thống tiện ích, kiến tạo một chuẩn mực sống mới tại Hải Phòng.

Phân Tích Chi Tiết Diện Tích Đất
Việc phân bổ diện tích đất 17.332m2 cho thấy sự ưu tiên rõ rệt của chủ đầu tư vào các yếu tố sau:
Tập trung vào nhà ở thương mại: Với 7.351m2 dành cho nhà ở liền kề, The Inter5 khẳng định vai trò là trung tâm thương mại và dịch vụ mới của khu vực. Các căn liền kề này được thiết kế để tối đa hóa không gian kinh doanh ở tầng trệt.
Cân bằng giữa xây dựng và không gian xanh: Đất cây xanh chiếm 2.036m2, thể hiện cam kết của dự án trong việc cung cấp một môi trường sống thân thiện với thiên nhiên. Điều này đặc biệt quan trọng trong bối cảnh đô thị hóa nhanh chóng.
Đảm bảo hạ tầng giao thông nội khu: Với 5.944m2 dành cho đất giao thông, cư dân The Inter5 được đảm bảo về sự lưu thông thuận tiện, giảm thiểu tắc nghẽn và tăng tính kết nối trong nội khu. Sự đầu tư vào hạ tầng này cũng gián tiếp nâng cao giá trị bất động sản của dự án.
Với những ưu điểm vượt trội về vị trí, quy hoạch và tiện ích, The Inter5 xứng đáng là tâm điểm đầu tư và an cư tại thành phố Hải Phòng trong những năm tới.