Golden Shophouse Vạn Phúc City: Cơ Hội Đầu Tư Và An Cư Vàng Tại Thủ Đức
Dự án Golden Shophouse, thuộc phân khu Đông Nam của Khu đô thị Vạn Phúc City, đã và đang trở thành tâm điểm thu hút giới đầu tư và cư dân tại Thành phố Thủ Đức, Hồ Chí Minh. Với vị trí đắc địa, quy hoạch đồng bộ và thiết kế hiện đại kết hợp tính thương mại cao, Golden Shophouse không chỉ là nơi an cư lý tưởng mà còn mở ra cơ hội kinh doanh sinh lời vượt trội.
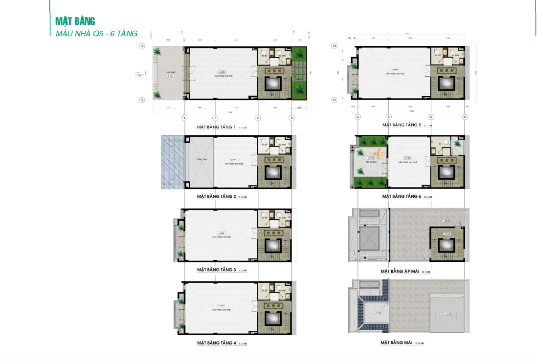
Golden Shophouse nằm trong tổng thể khu đô thị Vạn Phúc City, Phường Hiệp Bình Phước, Thành phố Thủ Đức. Khu đô thị này được mệnh danh là "thành phố trong lòng thành phố" nhờ sự đầu tư toàn diện về hạ tầng, tiện ích và dịch vụ. Các căn Shophouse tại đây được thiết kế sang trọng, hiện đại với kết cấu đặc biệt: 1 hầm, 1 trệt, nhiều tầng lầu và sân thượng. Thiết kế này tối ưu hóa không gian, cho phép chủ sở hữu vừa kinh doanh tại tầng trệt và tầng hầm, vừa tận hưởng không gian sống riêng tư, đẳng cấp tại các tầng trên.
Tổng Quan Dự Án Golden Shophouse
Golden Shophouse là phân khu nằm ở vị trí chiến lược trong Khu đô thị Vạn Phúc City, là sự kết hợp hoàn hảo giữa nhà ở và mặt bằng kinh doanh. Quy mô của dự án được xây dựng trên diện tích lớn, mang đến sự đa dạng về sản phẩm và tiện ích nội khu.

Quy Mô và Sản Phẩm
Quy mô tổng thể của phân khu Đông Nam là 35,3ha, tập trung vào loại hình sản phẩm chủ đạo là Nhà phố – Shophouse.
- Loại hình sản phẩm: Nhà phố – Shophouse.
- Kiến trúc: Bán cổ điển, mang lại vẻ ngoài sang trọng và bền vững theo thời gian.
- Kết cấu:
- Mặt tiền trục chính: 5-6 tầng.
- Mặt trong: 1 Hầm + Trệt + 3-4 Lầu + Sân Thượng (ST).
- Diện tích đất: Đa dạng, từ 140m2 đến 300m2.
- Diện tích sử dụng: Rộng rãi, từ 500m2 đến 600m2, tối ưu hóa công năng sử dụng cho cả mục đích thương mại và an cư.
Vị Trí Vàng Kết Nối Toàn Diện
Vị trí là yếu tố then chốt tạo nên giá trị bền vững cho Golden Shophouse. Dự án tọa lạc tại Phường Hiệp Bình Phước, Quận Thủ Đức (nay là Thành phố Thủ Đức), một khu vực đang phát triển mạnh mẽ về kinh tế và hạ tầng đô thị.
Golden Shophouse tọa lạc giữa hai trục đường huyết mạch và quan trọng nhất của khu đô thị Vạn Phúc City:
- Đường Nguyễn Thị Nhung (lộ giới 35m).
- Đường Đinh Thị Thi (lộ giới 30m).
Hai trục đường này không chỉ là tuyến giao thông nội khu chính mà còn kết nối xuyên suốt từ Quốc lộ 13 – tuyến đường huyết mạch phía Đông Sài Gòn – đến đường ven sông Sài Gòn thơ mộng. Điều này đảm bảo khả năng tiếp cận giao thông thuận lợi, tăng cường lưu lượng khách hàng cho các hoạt động kinh doanh tại Shophouse.

Tiện Ích Đẳng Cấp Nội Khu
Với mô hình phát triển “thành phố trong lòng thành phố”, Golden Shophouse và toàn bộ Vạn Phúc City được đầu tư xây dựng một hệ thống tiện ích, dịch vụ nội khu phong phú và đạt tiêu chuẩn quốc tế. Cư dân không cần đi đâu xa để tận hưởng cuộc sống trọn vẹn và tiện nghi.
Các Tiện Ích Nổi Bật
Hệ thống tiện ích đa dạng phục vụ mọi nhu cầu từ giải trí, mua sắm, giáo dục, đến sức khỏe và an ninh:
Tiện ích đã được mô tả chi tiết bao gồm:
- Quảng trường hồ Đại Nhật: Không gian công cộng rộng lớn, là nơi tổ chức sự kiện và thư giãn.
- Trung tâm thương mại: Đáp ứng nhu cầu mua sắm và giải trí cao cấp.
- Clubhouse Kênh Sông Trăng: Khu vực giải trí, thư giãn ven kênh đào nội khu.
- Trường học Quốc tế: Đảm bảo môi trường giáo dục chất lượng cho thế hệ tương lai.
- Khu thể dục thể thao, hồ bơi: Nâng cao sức khỏe và chất lượng cuộc sống.

Các Loại Hình Tiện Ích Chi Tiết Khác
Ngoài các công trình chức năng lớn, dự án còn tích hợp nhiều tiện ích phục vụ đời sống hàng ngày:
- Nhà hàng
- Trung tâm thương mại
- Vui chơi trẻ em
- Cửa hàng tiện lợi
- Spa
- Coffee
- Trường mẫu giáo
- Trường tiểu học
- Bãi đỗ xe
- Công viên
- Đường chạy bộ
- Phòng Gym
- Phòng Yoga
- HT An ninh (Hệ thống an ninh)
- Lối thoát hiểm
- Hệ thống PCCC (Phòng cháy chữa cháy)
- Hồ bơi

Thiết Kế Độc Đáo Và Công Năng Tối Ưu
Kiến trúc của Golden Shophouse theo phong cách Bán cổ điển, vừa giữ được nét trang nhã, cổ kính, vừa hòa hợp với sự hiện đại, năng động của khu đô thị mới. Sự kết hợp giữa không gian sống và kinh doanh là điểm nhấn lớn nhất trong thiết kế.
Cấu Trúc Tối Ưu Cho Kinh Doanh Và Sinh Hoạt
Cấu trúc 1 hầm, trệt, nhiều tầng lầu và sân thượng đáp ứng linh hoạt nhu cầu sử dụng:
- Tầng Hầm và Tầng Trệt: Lý tưởng cho việc mở cửa hàng, văn phòng, phòng trưng bày, hoặc các dịch vụ thương mại khác, tận dụng tối đa lợi thế mặt tiền đường lớn.
- Các Tầng Lầu: Được thiết kế là không gian sinh hoạt sang trọng, riêng tư cho gia đình.
- Sân Thượng: Là không gian mở để thư giãn, tổ chức tiệc ngoài trời, hoặc làm vườn.

Lợi Ích Khi Sở Hữu Golden Shophouse
Sở hữu Shophouse tại Vạn Phúc City mang lại nhiều lợi ích kép, đặc biệt là khả năng gia tăng giá trị tài sản trong tương lai.
Tiềm Năng Đầu Tư Vượt Trội
Nằm trên các trục đường chính 30m và 35m, Golden Shophouse được hưởng lợi từ lưu lượng giao thông lớn, đảm bảo nguồn khách hàng ổn định cho mọi loại hình kinh doanh. Khu đô thị Vạn Phúc City là một cộng đồng cư dân hiện hữu, có trình độ dân trí cao, tạo nên một môi trường kinh doanh chất lượng và bền vững.

Môi Trường Sống Sang Trọng
Với các căn Shophouse có diện tích sử dụng lên đến 500m2 - 600m2, chủ nhân sẽ có được không gian sống rộng lớn, tiện nghi, tách biệt khỏi khu vực thương mại. Hệ thống tiện ích nội khu đa dạng, từ trường học quốc tế, trung tâm thương mại, đến các khu thể thao, giúp nâng cao chất lượng cuộc sống cho cả gia đình.

Sự Khác Biệt Của Vạn Phúc City
Vạn Phúc City không chỉ đơn thuần là một khu đô thị mà là một mô hình thành phố thu nhỏ, được quy hoạch bài bản với sự cân bằng giữa không gian xanh, mặt nước và các công trình chức năng.
Hạ Tầng Đồng Bộ
Dự án sở hữu Kênh Sông Trăng và Quảng trường hồ Đại Nhật, tạo nên không gian mặt nước điều hòa khí hậu, mang lại cảnh quan đẹp và môi trường sống trong lành, mát mẻ.

An Ninh Và Cộng Đồng
Với hệ thống an ninh 24/7 (HT An ninh), lối thoát hiểm và Hệ thống PCCC hiện đại, cư dân tại Golden Shophouse hoàn toàn yên tâm về sự an toàn. Cộng đồng cư dân văn minh, hiện đại càng làm tăng giá trị sống và giá trị kinh doanh cho dự án.

Chi Tiết Mặt Bằng và Thiết Kế
Các lô đất có diện tích từ 140m2 đến 300m2, cho phép xây dựng những căn Shophouse bề thế, phù hợp với kiến trúc Bán cổ điển được lựa chọn. Sự đa dạng về diện tích đáp ứng nhu cầu đầu tư và kinh doanh khác nhau của khách hàng.

Tối Ưu Hóa Công Năng Sử Dụng
Cấu trúc nhiều tầng cho phép phân chia rõ ràng khu vực kinh doanh và khu vực sinh hoạt riêng tư, đảm bảo sự thoải mái tuyệt đối. Tổng diện tích sử dụng lên tới 500m2 - 600m2 là một lợi thế lớn, hiếm thấy đối với các sản phẩm nhà phố thương mại trong khu vực.

Các Hoạt Động Thể Dục Thể Thao Và Giải Trí
Golden Shophouse không chỉ tập trung vào thương mại mà còn chú trọng đến sức khỏe thể chất và tinh thần của cư dân.
Các khu vực phục vụ sức khỏe bao gồm:
- Phòng Gym và Phòng Yoga hiện đại.
- Đường chạy bộ ven công viên và ven sông.
- Hồ bơi tiêu chuẩn.
- Khu thể dục thể thao chung.

Kết Luận
Golden Shophouse tại Vạn Phúc City là một lựa chọn đầu tư và an cư lý tưởng tại Thành phố Thủ Đức. Sự kết hợp giữa vị trí chiến lược trên các tuyến đường lớn (Nguyễn Thị Nhung 35m và Đinh Thị Thi 30m), thiết kế shophouse 1 hầm - trệt - nhiều lầu tối ưu cho kinh doanh, và hệ thống tiện ích nội khu hoàn chỉnh đã tạo nên một sản phẩm bất động sản độc đáo, có giá trị gia tăng bền vững.
Với những ưu điểm vượt trội về mặt bằng, kiến trúc, và tiện ích, Golden Shophouse không chỉ là nơi để sinh sống mà còn là nền tảng vững chắc cho mọi hoạt động kinh doanh thành công trong tương lai.











